Mieszkanie, Sopot, Górny, 52 m²
Ogłoszeniodawca: Dom & House
Kontakt: Robert Krasnodębski
Informacje szczegółowe
- Dostępne od: 2024-02-21
- Tytuł ogłoszenia: Sopot Górny, apartament 2 pok /SPA
- Nr oferty ogłoszeniodawcy: DH370306
- Ulica: Smolna
- Powierzchnia użytkowa: 51.60 m²
- Liczba pięter: 3
- Pokoje: 2
- Liczba sypialni: 1
- Typ rynku: Pierwotny
- Taras: Tak
- Czy przy mieszkaniu jest ogródek: Tak
Budynek
- Rok budowy: 2024
- Typ budynku: blok
Media
- woda (miejskie)
Udogodnienia
- winda (1)
- obiekt zamknięty
- domofon
- internet
- miejsca parkingowe (parking podziemny)
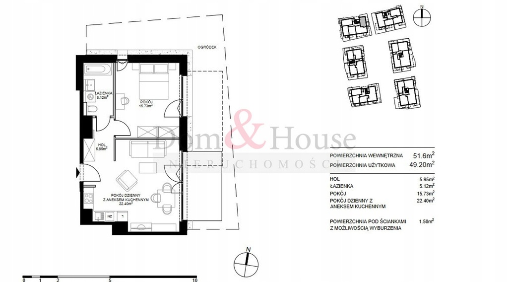
Dwupokojowe, słoneczne mieszkanie o pow. wewnętrznej 51.60 m2 (pow .użytkowa 49.20 m2 ) znajdujące się na parterze 3 piętrowego budynku w dzielnicy Sopot Świemirowo. Kameralna inwestycja składa się z 6 budynków z halami garażowymi oraz przestronną strefą relaksu dla mieszkańców.
Pomieszczenia
- Pokój dzienny z aneksem kuchennym - 22,40 m2
- Sypialnia - 15,73m2
- Łazienka - 5.12 m2
- Hol - 5,95 m2
- Komórka lokatorska - 3,23 m2 oraz miejsce postojowe w hali garażowej
Lokalizacja
Kompleks budynków wtopiony jest w część Trójmiejskiego Parku krajobrazowego, otoczony lasem. Z tarasów osiedla mieszkańcy mogą podziwiać widok na zatokę . Odległość do centrum Sopotu to zaledwie 10 min przejażdżki rowerem.
Unikatowe położenie łączące w sobie wygodę miasta i zaciszną enklawę.
Zalety
- wyjątkowa Lokalizacja
- osiedle zatopione w zieleni, nasadzenia tak przemyślane, że tworzą efekt całoroczny
- bardzo wysoka jakość wykończenia i dobór materiałów w standardzie Premium m in. elewacje wykonano z drewna przygotowanego specjalną techniką japońską (szlachetna, naturalna technika konserwująca - drewno palone),
- duże przeszklenia , dzięki którym pomieszczenia są
odpowiednio doświetlone o każdej porze dnia
- Strefa fitness i spa to przestronne powierzchnie , wtopione w charakter osiedla
- części wspólne posiadają , w tym biblioteki, sale klubowe
Kontakt w sprawie kredytu:
Joanna Langowska
Kierownik Działu Kredytowego
tel: 508 709 808
e-mail: j.langowska@domhouse.pl
Dom & House - Specjaliści od marzeń.
- Gwarantujemy bezpieczeństwo transakcji
- Znajdziemy najtańszy kredyt
- Pomoc prawna dzięki współpracy z najlepszymi kancelariami notarialnym i prawnymi
- Znajdziemy najtańsze ubezpieczenie nieruchomości
Prezentowana oferta ma charakter informacyjny, nie stanowi oferty handlowej w rozumieniu Art. 66 par. 1 Kodeksu Cywilnego.
Lokalizacja:
- Kraj: Polska
- Wojewodztwo: Pomorskie
- Miasto na prawach powiatu: Sopot
- Dzielnica: Górny
- Ulica: Smolna
(ref. A1538361470)