Mieszkanie, Ostróda, Ostródzki, 32 m²
Ogłoszeniodawca: PKP S.A. Oddział Gospodarowania Nieruchomościami w Gdańsku
Kontakt: Mateusz Morawski
Informacje szczegółowe
- Forma własności: własność
- Tytuł ogłoszenia: Kawalerka w Ostródzie przy Wyszyńskiego w doskonałej lokalizacji przy Centrum!
- Nr oferty ogłoszeniodawcy: 21010197
- Ulica: Kardynała Wyszyńskiego
- Powierzchnia użytkowa: 32.00 m²
- Liczba pięter: 3
- Pokoje: 1
- Typ rynku: Wtórny
Budynek
- Typ budynku: kamienica
Przedmiotowa nieruchomość położona jest w śródmiejskiej strefie miasta Ostróda przy ul. Wyszyńskiego 24 w sąsiedztwie terenów zabudowanych budynkami mieszkalnymi wielorodzinnymi.
Działka nr 112/19 o pow. 236 m2 ma kształt prostokątny, a jej granice wyznacza obrys budynku mieszkalnego wielorodzinnego opisanego w ewidencji gruntów pod adresem Kardynała Wyszyńskiego 22 i 24. Przedmiotem sprzedaży jest udział wynoszący 168/8000 w prawie użytkowania wieczystego działki nr 112/17.
Budynek mieszkalny nr 24 wielorodzinny murowany z cegły zbudowany w technologii tradycyjnej. Budynek posiada trzy kondygnacje nadziemne z poddaszem użytkowym i jest podpiwniczony. Ściany zewnętrze, nośne wykonane z cegły, natomiast fundamenty budynku z cegły i kamienia. Dach konstrukcji drewnianej, dwuspadowy pokryty blachodachówką. Klatka schodowa pomalowana farbami emulsyjnymi oraz olejnymi. Budynek wymaga prac remontowych. Wyposażony jest w podstawową instalację: elektroenergetyczną, wodociągową, kanalizacyjną i gazową.
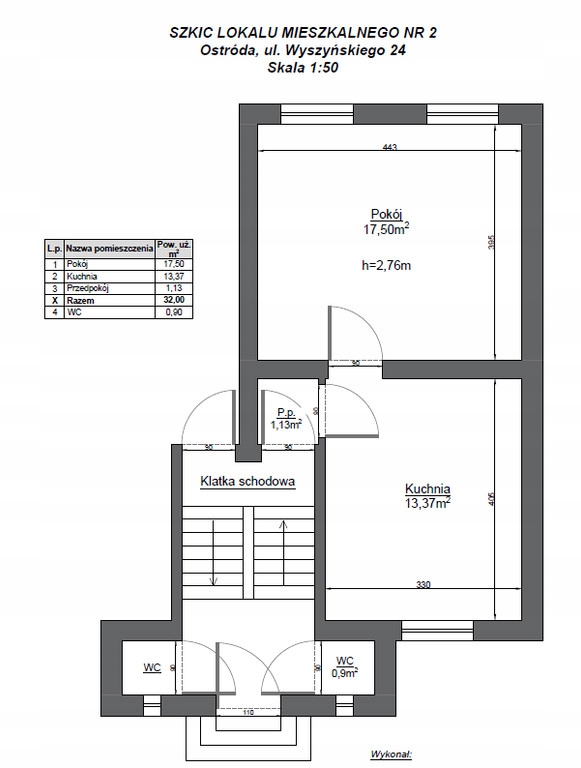
Lokal mieszkalny nr 2 o pow. 32 m2 jest usytuowanym na parterze budynku po prawej stronie klatki schodowej składający się z trzech pomieszczeń: kuchni o pow. 13,37 m2, pokoju- 17,50 m2, przedpokoju o pow. 1,13 m2 . Do lokalu przynależy WC o pow. 0,90 m2 znajdujące się poza lokalem, na półpiętrze z wejściem z klatki schodowej. Układ funkcjonalny pomieszczeń średni. Stolarka okienna i drzwiowa drewniana, podłogi drewniane pokryte płytami pilśniowymi oraz wykładziną PCV. Ściany wymagają renowacji oraz malowania. W pokoju znajduje się piec kaflowy. Ponadto, do lokalu przynależy piwnica o pow. 3,90 m2. Wszystkie instalacje są odłączone, a znajdująca się instalacja elektryczna i wodno-kanalizacyjna wymaga wymiany. Lokal mieszkalny jest pustostanem, kwalifikujący się do przeprowadzenia prac remontowych.
Działka nr 112/17, obręb 8 Ostróda posiada dostęp do drogi publicznej powiatowej nr 3031N ul. Wyszyńskiego poprzez istniejący zjazd (dz. nr 120, obręb 8 Ostróda).
W ewidencji gruntów działki nr 112/19, 112/16, 112/17 opisane są jako: B – tereny mieszkaniowe.
Nieruchomość położona w Ostródzie przy ul. Wyszyńskiego 24 została wpisana do rejestru zabytków woj. warmińsko-mazurskiego, na podstawie decyzji WKZ z dnia 09.11.1987 r. pod numerem rejestru A-2301 jako „Dom” oraz wpisany jest do Gminnej Ewidencji Zabytków Miasta Ostróda przyjętej zarządzeniem nr 103/2020 Burmistrza Miasta Ostróda z dnia 18.05.2020 r.
Sprzedaż będzie się odbywać w trybie przetargu nieograniczonego. Podana cena jest ceną orientacyjną netto. Skutki podatkowe sprzedaży zostaną określone przez PKP S.A. zgodnie z przepisami obowiązującymi w dniu zawarcia umowy sprzedaży.
W celu poznania szczegółów zapraszamy do kontaktu z osobą prowadzącą. Niniejszy materiał nie stanowi oferty w rozumieniu art. 66 § 1 Kodeksu Cywilnego z dnia 23 kwietnia 1964 r. (t.j. Dz. U. 2024, poz. 1061 z poźn. zm.).
Zgodnie z art. 13 RODO informujemy, że administratorem Pani/Pana danych osobowych jest „Polskie Koleje Państwowe S.A.” z siedzibą przy Al. Jerozolimskie 142A, 02-305 Warszawa (dalej PKP S.A., Ogłoszeniodawca). Podanie danych osobowych zawartych w formularzu kontaktowym jest dobrowolne, ale niezbędne do realizacji zapytania objętego formularzem. Pani/Pana dane osobowe będą przetwarzane w celu nawiązania kontaktu z PKP S.A. w związku z przedmiotowym ogłoszeniem na podstawie Pani/Pana zgody, która może zostać odwołana w dowolnym czasie. Wycofanie zgody nie wpływa na zgodność z prawem przetwarzania, którego dokonano na podstawie zgody przed jej wycofaniem. Kontakt z inspektorem ochrony danych PKP S.A.: iod@pkp.pl. Więcej informacjami dostępnych jest na stronie www.pkp.pl/RODO, w tym dotyczących przysługujących Pani/Panu praw, okresów przechowywania danych i kategorii odbiorców danych. Klikając przycisk „Wyślij wiadomość” wyraża Pani/Pan zgodę na przetwarzanie przez PKP S.A. danych osobowych w celu nawiązania kontaktu w sprawie niniejszego ogłoszenia.
Lokalizacja:
- Kraj: Polska
- Wojewodztwo: Warmińsko-mazurskie
- Powiat: Ostródzki (pow.)
- Miejscowosc: Ostróda
- Ulica: Kardynała Wyszyńskiego
(ref. A1540799784)