Mieszkanie, Ostróda, Ostródzki, 29 m²
Ogłoszeniodawca: PKP S.A. Oddział Gospodarowania Nieruchomościami w Gdańsku
Kontakt: Mateusz Morawski
Informacje szczegółowe
- Forma własności: własność
- Tytuł ogłoszenia: Dwupokojowe mieszkanie przy jeziorze Drwęckim w Ostródzie blisko stacji PKP!
- Nr oferty ogłoszeniodawcy: 21010187
- Ulica: Al. Juliusza Słowackiego
- Powierzchnia użytkowa: 29.04 m²
- Piętro: 1
- Liczba pięter: 2
- Pokoje: 2
- Typ rynku: Wtórny
Budynek
- Typ budynku: dom wielorodzinny
Działka nr 52/3 o pow. 2.616 m2 ma kształt regularny, zbliżony do prostokąta, ogrodzona, na której znajdują się dwa budynki mieszkalne nr 28 i nr 30 oraz dwa budynki gospodarcze. Przez teren ww. działki przebiega sieć wodociągowa, telekomunikacyjna, elektroenergetyczna, kanalizacyjna oraz gazowa. Od zachodu działka graniczy z zabudową mieszkaniową wielorodzinną, natomiast od strony południowo-wschodnio-północnej z drogami.
Budynek mieszkalny nr 30 przy ul. Słowackiego jest obiektem murowanym z cegły, zabudowanym w technologii tradycyjnej. Budynek wielorodzinny posiada dwie kondygnacje nadziemne z poddaszem użytkowym i jest podpiwniczony. Ściany zewnętrze, nośne wykonane z cegły, natomiast fundamenty budynku z cegły i kamienia. Dach konstrukcji drewnianej, dwuspadowy, krokwiowo-płycinowy, pokryty papą na deskowaniu. Klatka schodowa pomalowana farbami emulsyjnymi oraz olejnymi. Wyposażony jest w podstawową instalację: elektroenergetyczną, wodociągową, kanalizacyjną i gazową. Budynek wymaga przeprowadzenia prac remontowych.
Na działce nr 52/3 znajduje się murowany z cegły budynek gospodarczy obsługujący osiem lokali mieszkalnym, w którym to znajduje się pomieszczenie gospodarcze o pow. 8,55 m2 przynależne do lokalu mieszkalnego nr 3. Przedmiotowy budynek jest w słabym stanie technicznym. Budynek nie jest objęty ochroną konserwatorską.
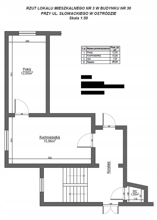
Lokal mieszkalny nr 3 o pow. 29,04 m2 jest usytuowanym na pierwszym piętrze budynku mieszkalnego nr 30 po lewej stronie klatki schodowej składający się z trzech pomieszczeń: kuchni/pokój o pow. 15.96 m2, pokoju- 12,05 m2 oraz WC o pow. 1,03 m2, z wejściem z klatki schodowej. Do lokalu przynależy pomieszczenie gospodarcze o pow. 8,55 m2 znajdujące się w budynku gospodarczym. Układ funkcjonalny pomieszczeń średni. Stolarka okienna i drzwiowa drewniana, podłogi drewniane pokryte płytami pilśniowymi oraz wykładziną PCV. Ściany wymagają renowacji oraz malowania. W małym pokoju znajduje się piec kaflowy. Wszystkie instalacje są odłączone, a znajdująca się instalacja elektryczna i wodno-kanalizacyjna wymaga wymiany. Lokal mieszkalny jest pustostanem, kwalifikujący się do przeprowadzenia prac remontowych.
Działka nr 52/3, obręb 5 Ostróda ma zapewniony bezpośredni dostęp do drogi publicznej poprzez istniejący zjazd z drogi powiatowej nr 3046N Słowackiego. W ewidencji gruntów działki nr 52/3 opisana jest jako: B – tereny mieszkaniowe.
Lokal mieszkalny nr 3 w budynku mieszkalnym nr 30 przy ul. Słowackiego w Ostródzie jest samodzielnym lokalem mieszkalnym, na podstawie ustawy z dnia 24.06.1994 r. o własności lokali, a w lokalu nie ma nie ma osób zameldowanych na pobyt stały, ani na pobyt czasowy.
Sprzedaż będzie się odbywać w trybie przetargu nieograniczonego.
W celu poznania szczegółów zapraszamy do kontaktu z osobą prowadzącą. Niniejszy materiał nie stanowi oferty w rozumieniu art. 66 § 1 Kodeksu Cywilnego z dnia 23 kwietnia 1964 r. (t.j. Dz. U. 2024, poz. 1061 z poźn. zm.)
Zgodnie z art. 13 RODO informujemy, że administratorem Pani/Pana danych osobowych jest spółka „Polskie Koleje Państwowe S.A.” z siedzibą przy Al. Jerozolimskie 142A, 02-305 Warszawa (dalej: PKP S.A., Ogłoszeniodawca). Podanie danych osobowych zawartych w formularzu kontaktowym jest dobrowolne, ale niezbędne do realizacji zapytania objętego formularzem. Pani/Pana dane osobowe będą przetwarzane w celu nawiązania kontaktu z PKP S.A. w związku z przedmiotowym ogłoszeniem na podstawie Pani/Pana zgody, która może zostać odwołana w dowolnym czasie. Wycofanie zgody nie wpływa na zgodność z prawem przetwarzania, którego dokonano na podstawie zgody przed jej wycofaniem. Więcej informacji o przetwarzaniu danych osobowych przez PKP S.A., w tym o przysługujących Pani/Panu prawach, okresach przechowywania danych i kategoriach odbiorców danych oraz dane kontaktowe do inspektora danych osobowych PKP S.A. znajdują się na stronie internetowej PKP S.A. w Polityce prywatności. Klikając poniższy przycisk „Zapytaj o ofertę” wyraża Pani/Pan zgodę na przetwarzanie przez PKP S.A. danych osobowych w celu nawiązania kontaktu w sprawie niniejszego ogłoszenia.
Lokalizacja:
- Kraj: Polska
- Wojewodztwo: Warmińsko-mazurskie
- Powiat: Ostródzki (pow.)
- Miejscowosc: Ostróda
- Ulica: Al. Juliusza Słowackiego
(ref. A1540674320)