Mieszkanie, Kraków, Bieńczyce, Os. Jagiellońskie, 36 m²
Ogłoszeniodawca: Studio Nowa Huta 2 s.c.
Kontakt: Tecnocasa Oddział 27
Informacje szczegółowe
- Forma własności: spółdzielcze-własnościowe
- Typ kuchni: osobna
- Stan nieruchomości: dobry
- Dostępne od: 2025-06-30
- Tytuł ogłoszenia: 2-pokojowe mieszkanie w zielonej okolicy
- Nr oferty ogłoszeniodawcy: 948
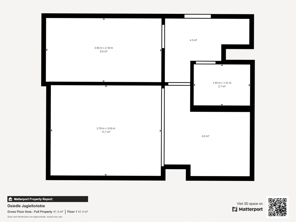
- Powierzchnia użytkowa: 36.09 m²
- Wysokość wnętrza: 3 cm
- Piętro: 4
- Liczba pięter: 4
- Pokoje: 2
- Liczba łazienek: 1
- Umeblowane: Tak
- Czy łazienka z WC: Razem
- Typ rynku: Wtórny
Budynek
- Rok budowy: 1960
- Typ budynku: blok
- Materiał budowlany: wielka płyta
- Stan budynku: dobry
Udogodnienia
- piwnica
- domofon
- miejsca parkingowe (na ulicy)
Wyposażenie
- kuchnia umeblowana
- lodówka
- pralka
Kraków – Nowa Huta - Bieńczyce – 36,09 m2
Zależy Ci na szybkim wprowadzeniu? Nie chcesz martwić się wymianą instalacji elektrycznej? Cenisz sobie zielone tereny i spokojną okolicę?
Nie szukaj dalej! Ta oferta jest właśnie dla Ciebie!
NIERUCHOMOŚĆ:
Proponujemy Państwu do zakupu 2-pokojowe mieszkanie na osiedlu Jagiellońskim, o powierzchni 36,09 m2, mieszczące się na 4. piętrze w niskim kameralnym bloku. W skład nieruchomości wchodzą:
- salon,
- osobna sypialnia,
- kuchnia,
- łazienka z WC,
- przedpokój.
Do mieszkania przynależy również piwnica.
STAN MIESZKANIA:
Mieszkanie jest w stanie dobrym. Na przedpokoju, w kuchni oraz w łazience płytki, w pokojach panele. Na ścianach wykonano gładzie. Wszystkie instalacje wodno-kanalizacyjne, elektryczne oraz hydrauliczne zostały wymienione. Ogrzewanie oraz ciepła woda z sieci miejskiej.
W salonie znajduje się sofa, stół z dwoma krzesłami, półka na książki lub inne rzeczy, meblościanka. Kuchnia wyposażona. W sypialni łóżko, szafa, komoda. Łazienka do delikatnego remontu, posiada wannę oraz WC. W przedpokoju miejsce na buty i płaszcze.
W ogłoszeniu zostały również umieszczone zdjęcia bez mebli, w celu przedstawienia potencjału poszczególnych pomieszczeń.
STAN BUDYNKU:
Stan budynku jest dobry. Nieruchomość znajduje się w zadbanym, kameralnym, czteropiętrowym bloku. Klatka wyremontowana, monitorowana. Przy budynku znajduje się ogólnodostępny parking. Obok bloku znajduje się nowy plac zabaw.
EKSPOZYCJA:
zachodnia
LOKALIZACJA:
Nieruchomość mieści się w dzielnicy Bieńczyce. W pobliżu dużo zieleni, planty Bieńczyckie. W pobliżu przedszkole, szkoła podstawowa, liceum. Wiele sklepów (Biedronka, Lewiatan), punktów handlowo-usługowych, placówek medycznych - szpital Rydygiera.
KOMUNIKACJA:
4 minut pieszo do przystanku tramwajowo-autobusowego „Rondo Hipokratesa“
6 minut pieszo do przystanku autobusowego „os. Jagiellońskie“.
CZYNSZ:
500 zł przy 2. osobach
STAN PRAWNY:
Spółdzielcze własnościowe bez KW
PODSUMOWANIE:
- Bieńczyce
- 2 pokoje
- 36,09 m2
- 4 piętro
- piwnica
- ogrzewanie: MPEC
- ciepła woda: MPEC
- stan: dobry
NAJWIĘKSZE PLUSY NIERUCHOMOŚCI:
- Funkcjonalny układ
- Wymienione instalacje elektryczne
- Blisko komunikacji miejskiej
- Bogata infrastruktura usługowo – handlowa
- Bliskość parku
Zgodnie z ustawą o gospodarce nieruchomościami Rozdział 2, Art. 180, pkt 3. przed oglądnięciem nieruchomości należy podpisać umowę pośrednictwa w kupnie. (USTAWA z dnia 21 sierpnia 1997 r. O gospodarce nieruchomościami).
Bierzesz kredyt?
W naszej Agencji posiadamy własny Dział Finansowania Nieruchomości. Współpracujemy z wieloma bankami, spośród których nasz doradca pomoże Państwu wybrać najlepszą ofertę. U nas mogą Państwo spodziewać się najkorzystniejszej indywidualnej oferty dopasowanej do Państwa potrzeb, kompleksowego objaśnienia zasad przyznawania kredytu, wykonania wszystkich formalności oraz przeprowadzenia całego procesu krok po kroku w jednym miejscu.
Bądź na bieżąco! Facebook: Tecnocasa Piastów - Agencja Nieruchomości, Instagram: tecnocasa_piastow
Zapraszamy na prezentację!
TECNOCASA, oddział XXVII
os. Piastów 21 B,
31-624 Kraków
tel. 579-490-801
tel. 504-138-977
tel. 504-143-011
tel. 693-222-500
Lokalizacja:
- Kraj: Polska
- Wojewodztwo: Małopolskie
- Miasto na prawach powiatu: Kraków
- Dzielnica: Bieńczyce
- Okolica: Os. Jagiellońskie
(ref. A1540804509)