Mieszkanie, Gdańsk, Wrzeszcz, 79 m²
Ogłoszeniodawca: Pepper House
Kontakt: Piotr Bartosiuk
Informacje szczegółowe
- Tytuł ogłoszenia: Przestronne mieszknie w sercu Wrzeszcza
- Nr oferty ogłoszeniodawcy: PH856681046
- Ulica: Gen. De Gaulle'a
- Powierzchnia użytkowa: 79.00 m²
- Liczba pięter: 3
- Pokoje: 3
- Typ rynku: Wtórny
Budynek
- Rok budowy: 1900
- Typ budynku: kamienica
- Materiał budowlany: cegła
Udogodnienia
- piwnica
- domofon
Na sprzedaż przestronne 3-pokojowe mieszkanie w sercu Wrzeszcza.
Atuty nieruchomości:
- przestronne i ustawne pokoje
- dwustronna ekspozycja
- bliskość pełnej infrastruktury handlowo-usługowej
- bliskość komunikacji miejskiej
- bliskość terenów zielonych
Mieszkanie zlokalizowane w najbardziej pożądanej części gdańskiego Wrzeszcza. Klimatyczne uliczki, kamienice, zielone skwery, parki, las, place zabaw, kawiarnie, restauracje, sklepy, usługi i komunikacja miejska - wszystko co charakteryzuje centrum miasta plus elementy, dzięki którym odpoczniemy w spokoju. Zamieszkaj we Wrzeszczu!
Budynek, w którym mieści się lokal to kamienica z 1900 roku. Dzięki prężnie działającej wspólnocie jest to jedna z najzdrowszych kamienic w rejonie z wyremontowanym dachem, elewacją, klatką schodową i fundamentami. Budynek od strony patio także ocieplony. W budynku jest monitoring na 8 kamer i domofon więc mieszkańcy mogą czuć się naprawdę bezpiecznie. Do mieszkania przynależy duża piwnica.
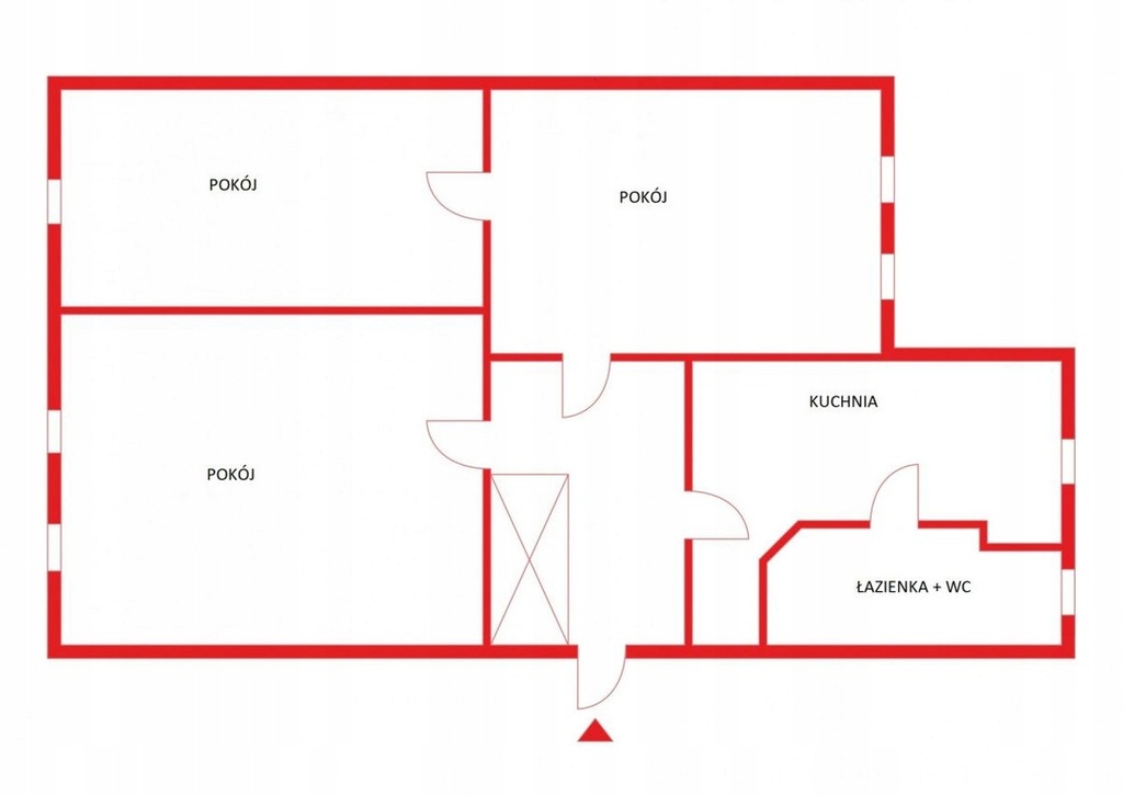
Na mieszkanie o powierzchni 79 m2 składa się:
- pokój - 24 m2
- pokój - 18 m2
- pokój - 17 m2
- kuchnia - ok. 9 m2
- łazienka z WC - ok. 5 m2
- przedpokój
Mieszkanie zlokalizowane na wysokim parterze. Wysokość sufitu na poziomie 2,8 m. Ściany w mieszkaniu wyrównane. Na podłogach panele i terakota. Nieruchomość stwarza bardzo duże możliwości aranżacyjne i stanowi idealne rozwiązanie zarówno dla inwestorów, jak i ludzi poszukujących swojego własnego miejsca.
Instalacja elektryczna nowa, miedziana. Ogrzewanie gazowe dwufunkcyjnym piecem. Opłaty około 520 zł miesięcznie.
Polecamy!
Lokalizacja:
- Kraj: Polska
- Wojewodztwo: Pomorskie
- Miasto na prawach powiatu: Gdańsk
- Dzielnica: Wrzeszcz
- Ulica: Gen. De Gaulle'a
(ref. A1539113928)