Mieszkanie, Drvenik, 48 m²
Ogłoszeniodawca: Nieruchomości- Pośrednictwo i Wycena Lokum
Kontakt: Anna Światowiec
Informacje szczegółowe
- Typ kuchni: aneks
- Stan nieruchomości: bardzo dobry
- Tytuł ogłoszenia: Apartamenty w Drvenik!
- Nr oferty ogłoszeniodawcy: HR8/25
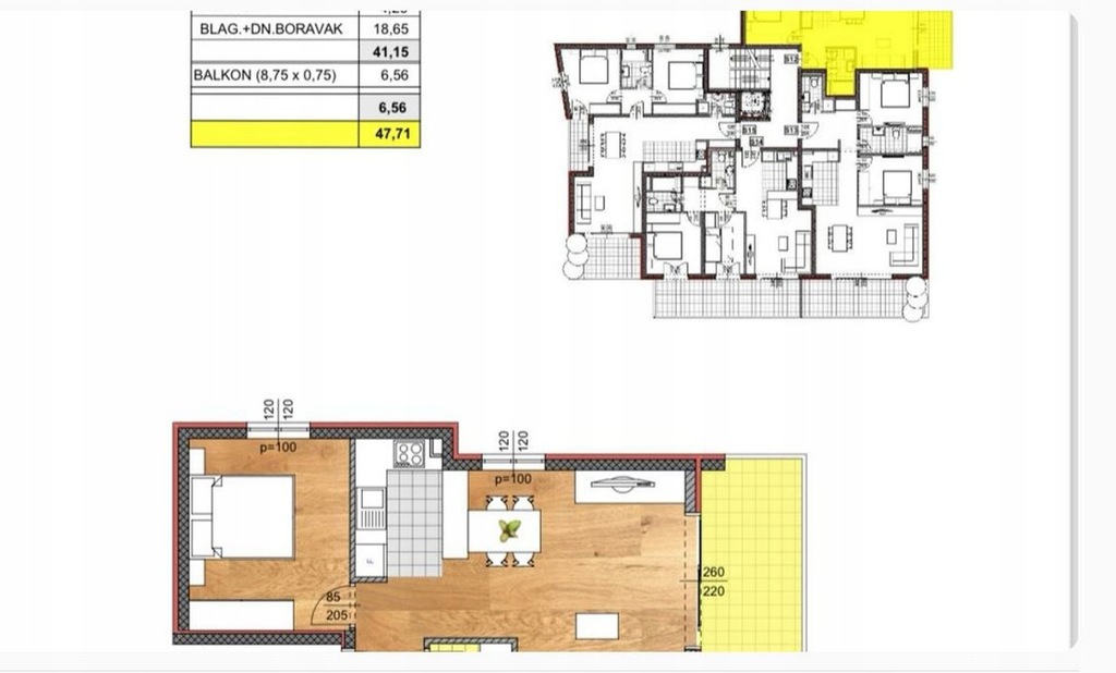
- Powierzchnia użytkowa: 47.71 m²
- Piętro: 2
- Liczba pięter: 2
- Pokoje: 1
- Liczba łazienek: 1
- Czy łazienka z WC: Razem
- Typ rynku: Pierwotny
- Taras: Tak
Budynek
- Typ budynku: apartamentowiec
- Stan budynku: bardzo dobry
Udogodnienia
- miejsca parkingowe (parking naziemny)
Nowe budownictwo w malej miejscowosci Drvenik, na południe od Riviery Makarskiej.
Mieszkaja maja byc gotowe do lipca, odbiory do konca roku. Do plazy i promenady okolo 100m.
Zostalo wolnych 5 mieszkan:
Mieszkanie S3 – parter – orientacja na zachod – widok na morze, powierzchnia mieszkania 63,45m2, wraz z balkonem 75,35m2 – 2 sypialnie, salon z kuchnia, cena 290 000 EUR
Mieszkanie S7 – 3 pietro- orientacja na poludnie i zachod – widok na morze, 2 sypialnie, salon z kuchnia, 2 balkony, powierzchnia mieszkania 66,48m2, wraz z balkonami 75,54m2 – cena 310 000 EUR
Mieszkanie S8 – 2 pietro- orientacja polnoc – wschod – widok tylko czesciowy z balkonu, jedna sypialnia, salon z kuchnia, powierzcjnia mieszkania 41,15 m2, wraz z balkonem 47,71m2 – cena 200 000 EUR
Mieszkanie S12 – 3 pietro – orientacja polnoc – wschod – widok tylko czesciowy z balkonu, jedna sypialnia, salon z kuchnia, powierzcjnia mieszkania 41,15 m2, wraz z balkonem 47,71m2 – cena 210 000 EUR
Mieszkanie S15 – 3 pietro – orientacja na poludnie i zachod – widok na morze, 2 sypialnie, salon z kuchnia, 2 balkony, powierzchnia mieszkania 66,40m2, wraz z balkonami 75,54m2 – cena 310 000 EUR
W cene wliczone jest zewnetrzne miejsce postojowe.
Lokalizacja
Croatia / Dalmacja / Drvenik
Odległość od plaży: 100m
Lokalizacja:
- Kraj: Chorwacja
- Zagranica - region: Splicko-Dalmatyński
- Zagranica - miasto: Drvenik
(ref. A1540807085)