Lokal usługowy, Warszawa, Mokotów, Stary Mokotów, 99 m²
Ogłoszeniodawca: Agencja Mienia Wojskowego Oddział Regionalny
Kontakt: Marketing Warszawa
Informacje szczegółowe
- Typ nieruchomości: handel i usługi/lokal usługowy
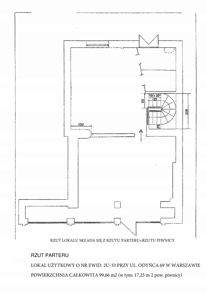
- Tytuł ogłoszenia: Lokal użytkowy do najmu - Warszawa ul. Odyńca 69
- Nr oferty ogłoszeniodawcy: 39
- Ulica: Antoniego Edwarda Odyńca
- Powierzchnia użytkowa: 99.00 m²
- Typ rynku: Wtórny
- Liczba pomieszczeń: 2
Budynek
- Stan budynku: bardzo dobry
Media
- kanalizacja (miejska)
- woda (miejskie)
Udogodnienia
- dostęp do drogi (asfaltowa/betonowa)
- miejsca parkingowe (na ulicy)
Lokalizacja
Oferowany lokal użytkowy (nr ewid. 2U-33) znajduje się w budynku mieszkalnym wielorodzinnym przy ul. Odyńca 69 w dzielnicy Mokotów w Warszawie. Obiektem zarządza wspólnota mieszkaniowa. Budynek jest wyposażony we wszystkie sieci infrastruktury miejskiej. Lokal nie ma przypisanego miejsca parkingowego.
Nieruchomość położona jest między ul. Wołoską i Al. Niepodległości, które cechuje duży ruch pieszych oraz pojazdów. Lokal jest bardzo dobrze skomunikowany, a połączenie zapewniają położone w pobliżu: stacja metra Racławicka (ok. 800 m), przystanki autobusowe (ok. 200 m) oraz przystanek tramwajowe (ok. 350 m). Dodatkowo w odległości ok. 400 m znajduje się stacja Veturilo (system rowerów warszawskich). W najbliższym otoczeniu nieruchomości usytuowana zabudowa mieszkaniowa wielorodzinna z usługami na parterze.
Opis i charakterystyka
Lokal usytuowany jest na parterze (pow. 82,41 m2) i częściowo na poziomie piwnic (pow. 17,25 m2) budynku mieszkalnego wielorodzinnego. Całkowita powierzchnia lokalu wynosi 99,66 m2. Do lokalu prowadzą dwa wejścia: jedno bezpośrednio od ulicy Odyńca z dobrze widocznymi dużymi witrynami okiennymi oraz drugie od zaplecza – zamknięte i nieużywane (brak klucza). Nieruchomość składa się z dwóch dużych otwartych pomieszczeń w części naziemnej oraz pomieszczenia na poziomie piwnicy wraz z pomieszczeniem WC i małą kotłownią.
Lokal wyposażony jest w instalacje: elektryczną, centralnego ogrzewania oraz wodno-kanalizacyjną.
Szczegółowych informacji udzieli:
Aleksandra Dłutek
Tel.: (+48 22) 326 10 65
Lokalizacja:
- Kraj: Polska
- Wojewodztwo: Mazowieckie
- Miasto na prawach powiatu: Warszawa
- Dzielnica: Mokotów
- Okolica: Stary Mokotów
- Ulica: Antoniego Edwarda Odyńca
(ref. A1540676235)