Lokal handlowy, Kraków, Stare Miasto, 31 m²
Ogłoszeniodawca: MINT PROPERTY sp. z o.o.
Kontakt: Łukasz Janawa
Informacje szczegółowe
- Typ nieruchomości: handlowy
- Nr oferty ogłoszeniodawcy: 23323
- Ulica: Krowoderska
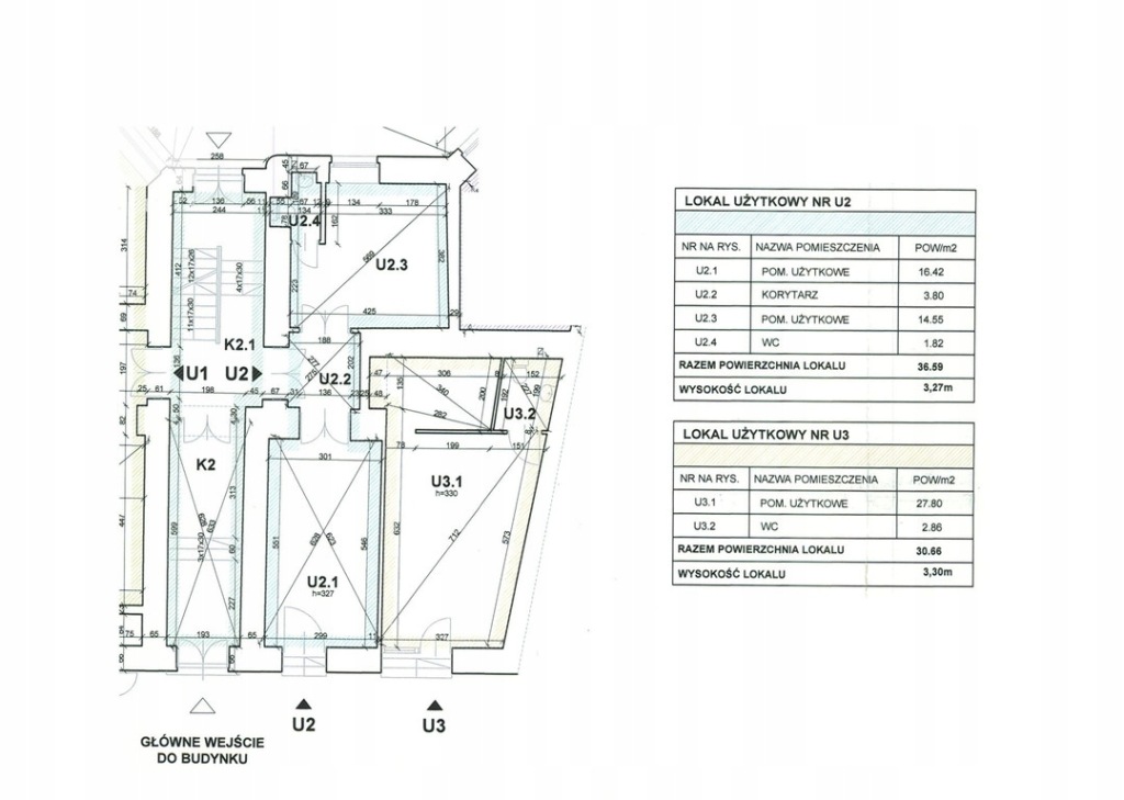
- Powierzchnia użytkowa: 30.73 m²
- Liczba pięter: 3
- Liczba pomieszczeń: 2
Budynek
- Rok budowy: 1914
MINT Property prezentuje lokal usługowy o powierzchni 30.73 m2 położony przy ul. Krowoderskiej.
Rozkład lokalu prezentuje rzut załączony do oferty. Wejście do lokalu od ulicy. Kamienica powstała w 1914 roku, zadbana.
Pełna własność z KW. Możliwość zakupu dodatkowych komórek lokatorskich w piwnicy. Kotłownia gazowa w budynku.
Lokalizacja:
Nieruchomość przy znajduje się w prestiżowej dzielnicy Stare Miasto, zaledwie około 700 metrów od Rynku Głównego. To doskonała lokalizacja dla osób ceniących bliskość centrum oraz dostęp do bogatej infrastruktury miejskiej.. Kamienica znajduje się tuż obok Placu Biskupiego. Mimo usytuowania w sercu Krakowa, ul. Krowoderska jest relatywnie spokojna i cicha. W okolicy cała niezbędna infrastruktura handlowo-usługowa, liczne punkty gastronomiczne oraz przystanki tramwajowo-autobusowe.
Cena:
614 600 PLN
Zapraszam do kontaktu oraz na prezentacje nieruchomości.
Informacja dodatkowa:
Niniejsze ogłoszenie jest wyłącznie informacją handlową i nie stanowi oferty w myśl art. 66, paragraf 1. Kodeksu Cywilnego
Lokalizacja:
- Kraj: Polska
- Wojewodztwo: Małopolskie
- Miasto na prawach powiatu: Kraków
- Dzielnica: Stare Miasto
- Ulica: Krowoderska
(ref. A1540614194)