Działka, Wrocław, Psie Pole, Poświętne, 692 m²
Ogłoszeniodawca: Kompas Nieruchomości
Kontakt: Anna Wójcik
Informacje szczegółowe
- Typ działki: rolno-budowlana
- Forma własności: własność
- Tytuł ogłoszenia: Piękna działka w doskonałym położeniu
- Nr oferty ogłoszeniodawcy: 3607
- Ulica: Poświęcka
- Pow. działki: 692.00 m²
- Typ rynku: Wtórny
Media
- gaz (miejski)
- kanalizacja (miejska)
- woda (miejskie)
Udogodnienia
- dostęp do drogi (asfaltowa/betonowa)
- ogrodzenie (brak)
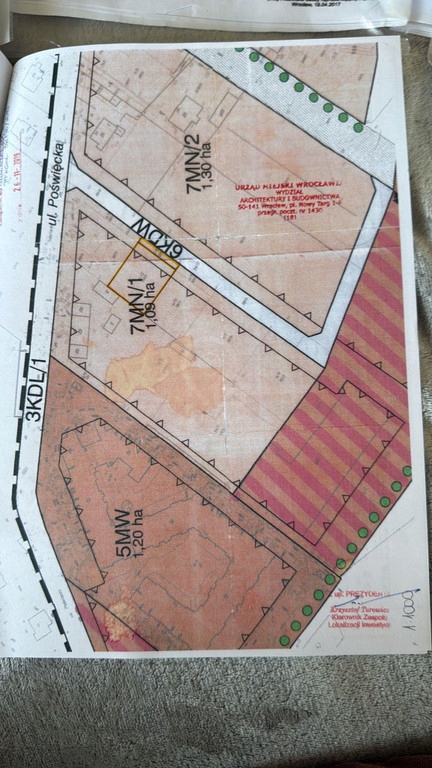
REZERWACJA. Działka z przeznaczeniem w planie miejscowym na budownictwo jednorodzinne.
Działka w doskonałej zielonej okolicy w otoczeniu domów jednorodzinnych przy spokojnej uliczce Ludwika Kubali bocznej od ulicy Poświęckiej.
Zgoda na podłączenie mediów. Woda i kanalizacja w drodze, służebność i zgoda na podłączenie prądu. Gaz w drodze głównej 50m od działki (zalecane wykorzystanie pompy ciepła).
Działka bez zabudowań, idealna do dowolnej aranżacji domem jednorodzinnym wolnostojącym lub bliźniaczym. Wielkość działki 692m2 w otoczeniu innych domów jednorodzinnych i wielorodzinnych jak na załączonych zdjęciach.
Zapraszam na prezentację i po więcej szczegółów.
Anna Wójcik 794 707 699
Wyłącznie u nas
Kompas Nieruchomości
Jeśli potrzebujesz dokredytowania na zakup lub budowę domu zapraszam na bezpłatne spotkanie z doradcą specjalizującą się z kredytach hipotecznych i gotówkowych.
Treść niniejszego ogłoszenia nie stanowi oferty handlowej w rozumieniu Kodeksu Cywilnego.
Oferta wysłana z programu IMO dla biur nieruchomości
Lokalizacja:
- Kraj: Polska
- Wojewodztwo: Dolnośląskie
- Miasto na prawach powiatu: Wrocław
- Dzielnica: Psie Pole
- Okolica: Poświętne
- Ulica: Poświęcka
(ref. A1540624105)