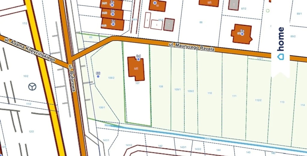
Działka, Wrocław, Krzyki, Jagodno, 803 m²
Ogłoszeniodawca: HOME - Warszawa, Karków, Wrocław, Katowice, cała Polska
Kontakt: Paula Ratajczyk
Informacje szczegółowe
- Typ działki: BUDOWLANA/Budownictwo jednorodzinne indywidualne
- Tytuł ogłoszenia: Działka budowlana na wrocławskim Jagodnie
- Nr oferty ogłoszeniodawcy: 364/14016/OGS
- Ulica: Brzozowa
- Pow. działki: 803.00 m²
- Typ rynku: Wtórny
Udogodnienia
- ogrodzenie (brak)
Na sprzedaż nieruchomość gruntowa zlokalizowana na wrocławskim Jagodnie przy ul. Ravela.
Powierzchnia działki wynosi 803 m2 / ok.15,5 m x ok. 51,8 m
Zgodnie z MPZP oznaczona symbolem 1MN, przeznaczona pod zabudowę jednorodzinną wolnostojącą.
Media prąd, woda, gaz w ulicy Brzozowej.
Oferta wysłana z programu dla biur nieruchomości ASARI CRM (asaricrm.com)
Lokalizacja:
- Kraj: Polska
- Wojewodztwo: Dolnośląskie
- Miasto na prawach powiatu: Wrocław
- Dzielnica: Krzyki
- Okolica: Jagodno
- Ulica: Brzozowa
(ref. A1539344408)