Działka, Świątniki, Trzebnica, Trzebnicki, 5300 m²
Ogłoszeniodawca: A. M. Nieruchomości Izabela Mateuszuk
Kontakt: Remigiusz Pawlicki
Informacje szczegółowe
- Typ działki: Pod Zabudowę Jednorodzinną
- Tytuł ogłoszenia: Wzgórza Trzebnickie Piekny widok blisko Miasta
- Nr oferty ogłoszeniodawcy: 126543
- Ulica: Bukowa
- Pow. działki: 5300.00 m²
Udogodnienia
- dostęp do drogi (asfaltowa/betonowa)
Na sprzedaż dwie działki w Świątnikach - idealne na budowę domu
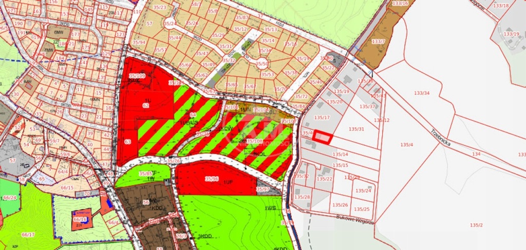
Zapraszam do zapoznania się z ofertą sprzedaży dwóch działek o łącznej powierzchni 5300 m² (nr 135/44 i 135/45), położonych w malowniczej wsi Świątniki, w bliskiej odległości od Trzebnicy. To doskonałe miejsce dla osób szukających spokoju i bliskości natury, a jednocześnie łatwego dostępu do miasta.
Lokalizacja:
1,5 km do centrum Trzebnicy
W okolicy: lasy, parki, plac zabaw, przedszkole, szkoła, żłobek, przychodnia, poczta oraz komisariat policji
Informacje o działkach:
Brak miejscowego planu zagospodarowania przestrzennego
Teren przeznaczony pod zabudowę jednorodzinną (zgodnie z planem ogólnym)
Należy uzyskać warunki zabudowy
Media dostępne w pobliżu (woda, prąd, gaz)
Udział w drodze dojazdowej
Dlaczego warto?
Ładne widoki na wzgórza trzebnickie i panoramę Trzebnicy
Cicha, spokojna okolica z niską zabudową, sprzyjająca komfortowemu życiu
Jeśli marzysz o własnej działce wśród natury, z dogodnym dostępem do miasta, to ta oferta jest dla Ciebie. Zadzwoń i umów się na prezentację!
Lokalizacja:
- Kraj: Polska
- Wojewodztwo: Dolnośląskie
- Powiat: Trzebnicki (pow.)
- Gmina miejsko-wiejska: Trzebnica (gm.)
- Miejscowosc: Świątniki
- Ulica: Bukowa
(ref. A1540698764)