Działka, Będzin, 5800 m²
Ogłoszeniodawca: Argamo Nieruchomości Sp. z oo
Kontakt: Michał Janecki
Informacje szczegółowe
- Typ działki: przemysłowa
- Forma własności: własność
- Nr oferty ogłoszeniodawcy: 378
- Pow. działki: 5800.00 m²
Media
- gaz (miejski)
- kanalizacja (brak)
Udogodnienia
- dostęp do drogi (asfaltowa/betonowa)
- ogrodzenie (brak)
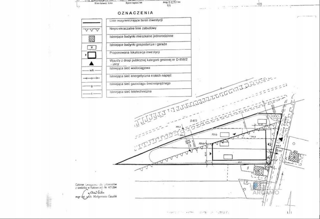
Oferujemy do sprzedaży cztery działki o łącznej powierzchni 58 ar, działki posiadają miejscowy plan zagospodarowania przestrzennego - 6U, pod Halę Magazynową z zapleczem biurowym o pow. 3000 m2.
MPZP:
- wskaźnik powierzchni zabudowy działki 60%,
- wskaźnik intensywności zabudowy maksymalnie 1,2,
- wysokość zabudowy do 15 m,
-odległość ściany budynku bez okien i drzwi, to1,5 m od granicy działki lub nawet bezpośrednio przy niej.
Działka znajduje się około jednego kilometra od - Park Inwestycyjny Psary Bardzo, bardzo dobry dostęp do drogi DK86.
Cena sprzedaży 1.200.000,00
Cena 207 zł/m2
Opiekunem oferty jest:
Michał Janecki
tel. kont. 661-367-626
DANE KONTAKTOWE:
Michał Janecki
661367626
michal.janecki@argamo.pl
Treść niniejszego ogłoszenia nie stanowi oferty handlowej w rozumieniu Kodeksu Cywilnego.
Oferta wysłana z programu IMO dla biur nieruchomości
Lokalizacja:
- Kraj: Polska
- Wojewodztwo: Śląskie
- Powiat: Będziński (pow.)
- Gmina miejska: Będzin
(ref. A1537711761)