Dom jednorodzinny z poddaszem użytkowym
5 pokoi, 1 kuchnia, 2 łazienki, spiżarka, pralnia, antresola, kominek, garaż
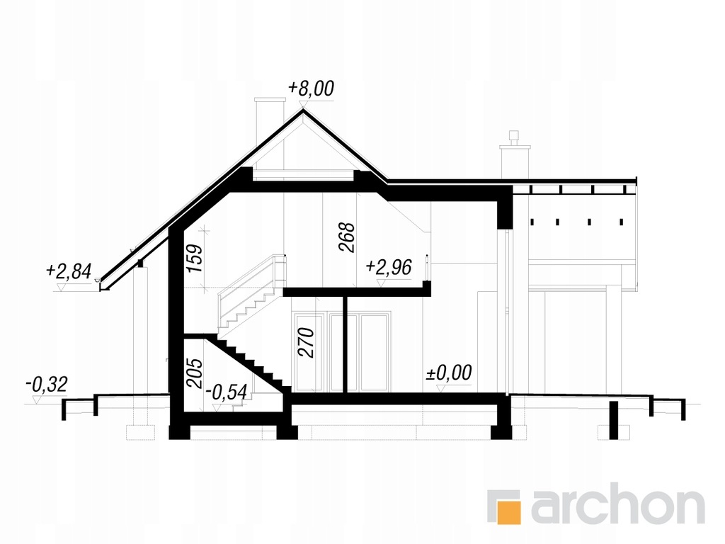
Konstrukcja:
- ściany: bloczek z betonu komórkowego 24 cm, styropian 20 cm, tynk silikonowo- sylikatowy
- strop: płyta żelbetowa
- ścianka kolankowa: 159 cm
- dach: dwuspadowy, nachylenie 40 st. , więźba drewniana, blachodachówka, poddasze ocieplone pianą poliuretanową otwarto komórkową 22 cm
- kocioł: gazowy firmy Buderus
- ogrzewanie podłogowe: PARTER: Wiatrołap (1), Kuchnia (3), Salon + Jadalnia (5), Łazienka (6);
PODDASZE: Łazienka (8)
- rekuperacja
- instalacja elektryczna, telewizyjna, alarmowa i wideodomofonowa
- własne ujęcie wody - studnia głębinowa ( z odżelazianiem oraz zmiękczaniem)
- parapety zewnętrzne z blachy powlekanej
- brama garażowa i wjazdowa systemowa z automatem
- system kominowy firmy Schneider z 30- letnią gwarancją
- zagospodarowany ogród z trawą z rolki
Wyjątkowy dom, będący ciekawą propozycją dla tych, którzy chcą się cieszyć efektowną przestrzenią zewnętrzną i wewnętrzną budynku. Prosta bryła domu prezentuje się bardzo atrakcyjnie dzięki ciekawemu rozwiązaniu elewacji ogrodowej, gdzie zaprojektowano zadaszony taras z kominkiem. Jego wielkość i forma sprawia, że z powodzeniem stanie się on ulubionym miejscem relaksu na świeżym powietrzu. Stonowane kolory tynków oraz kamienne okładziny nadają całości stylowy charakter, a panoramiczne przeszklenia płynnie łączą dom z ogrodem.
Strefa dzienna parteru to wyjątkowo reprezentacyjna i pięknie doświetlona przestrzeń, idealna na wspólny wypoczynek rodziny oraz przyjaciół. Uwagę zwraca dwukondygnacyjny salon, z efektownymi przeszkleniami, który płynnie łączy się z zadaszonym tarasem, tworząc kompozycyjną całość. Wygodny zestaw wypoczynkowy umożliwia relaks przed kominkiem i kinem domowym, zapewniając również widok na ogród. Jadalnia została umieszczona w przeszklonym narożniku, gdzie znajdziemy też miejsce na praktyczne kredensy. Otwartą kuchnię doświetla narożne okno, a jej atutem jest wielofunkcyjna wyspa oraz wyjście na taras, gdzie można zorganizować letnią jadalnię lub kącik kawowy. Program kuchni uzupełnia spiżarnia pod schodami. Z wiatrołapu przechodzimy do garażu.
Komfortowa strefa nocna na poddaszu spełni oczekiwania każdej rodziny. Jasna sypialnia rodziców z uwagi na wielkość pozwala na dowolną aranżację wnętrza według upodobań mieszkańców. Dwa bliźniacze pokoje dziecięce dysponują miejscem na pojemne szafy ścienne i biurka do nauki. W łazience zaplanowano wystarczającą przestrzeń na montaż wanny, kabiny prysznicowej oraz dwóch umywalek. Obszerna antresola z widokiem na salon posiada część gabinetową i wypoczynkową, służąc miejscem do prywatnego odpoczynku całej rodzinie.
Nieruchomość zlokalizowana w miejscowości Łoziska w powiecie piaseczyńskim, w gminie Lesznowola.
Zaciszne miejsce w otoczeniu niskiej zabudowy, z szybkim dojazdem zarówno do Piaseczna jak i do Warszawy.
Komunikacja:
- przystanek Łoziska ul. Orężna róg Złotych Łanów - 700 m
- przystanek Stara Iwiczna ul. Słoneczna - 700 m
- PKP Piaseczno ul. Dworcowa - 4 km
- PKP Nowa Iwiczna - 3,5 km
- przystanek autobusu szkolnego - Łoziska ul. Fabryczna - 300 m
Sklepy:
- Auchan, Leroy Merlin Piaseczno ul. Puławska- 6 km
- Fashion House Piaseczno ul. Energetyczna - 4 km