Dom, Świdnica, Świdnicki, 158 m²
Ogłoszeniodawca: CZAJCZYŃSKI NIERUCHOMOŚCI
Kontakt: Piotr Czajczyński
Informacje szczegółowe
- Forma własności: Własność
- Dach: dachówka ceramiczna
- Stolarka okienna: PCV
- Tytuł ogłoszenia: PONIEMIECKA WILLA 158m2 NA DZIAŁCE 707m2 GARAŻ
- Nr oferty ogłoszeniodawcy: CZN-DS-1005
- Ulica: Miernicza
- Pow. działki: 707.00 m²
- Powierzchnia użytkowa: 158.00 m²
- Wysokość wnętrza: 265 cm
- Liczba pięter: 1
- Pokoje: 5
- Typ rynku: Wtórny
Budynek
- Materiał budowlany: wolnostojący
- Stan budynku: dobry
Udogodnienia
- balkon
- internet
- linia telefoniczna
- dostęp do drogi (asfaltowa/betonowa)
Oferta na wyłączność
Poniemiecka willa posadowiona na narożnej działce o powierzchni 707 m 2 i przybliżonych wymiarach 25 m x 28 m
Budynek mieszkalny, wolno stojący, trzykondygnacyjny (piwnica, parter, piętro) o powierzchni użytkowej ok. 158 m 2 + strych
Dodatkowo na działce garaż dwustanowiskowy o powierzchni ok. 58 m 2 z przyległą wiatą i bramami wjazdowymi sterowanymi automatycznie
Bardzo zadbany ogród z licznymi nasadzeniami ozdobnymi
LOKALIZACJA:
- Świdnica, obręb Zachód, ulica Miernicza (przy skrzyżowaniu z ulicą Świętojańską - usytuowanie narożne),
- w najbliższym sąsiedztwie dominuje zabudowa mieszkaniowa jednorodzinna z osiedlowymi sklepami spożywczymi i drobnymi usługami (w promieniu 120 m),
- w nieco dalszym otoczeniu znajdują się atrakcyjne tereny rekreacyjne nad Zalewem Witoszówka (450 m), Szpital "Latawiec" (400 m), Kościół Rzymskokatolicki pw. św. Andrzeja Boboli oraz szkoła podstawowa i zawodowa (150 m) ;
- odległość do Rynku 1,5 km, natomiast najbliższy przystanek autobusowy oddalony jest zaledwie o 150 m.
CHARAKTERYSTYKA:
=> Budynek wolno stojący o powierzchni 158 m 2 , na którą składają się:
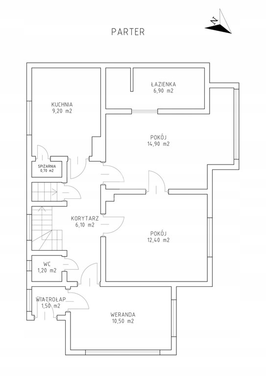
- PARTER (H ŚR. = 265 cm): 2 pokoje (15 m 2 ; 12,5 m 2 ) , kuchnia ze spiżarnią (10 m 2 ) , łazienka (7 m 2 ) , wc (1,5 m 2 ) , weranda (10,5 m 2 ), wiatrołap (1,5 m 2 ) i komunikacja;
- PIĘTRO ( H ŚR. = 270 cm) : 3 pokoje ( 19 m 2 ; 14m 2 ; 10,5 m 2 , ) , łazienka (3,5 m 2 ) i komunikacja;
- PIWNICA ( H ŚR. = 185 cm): 2 pomieszczenia gospodarcze (21,5 m 2 ; 12 m 2 ) , kuchnia (10,5 m 2 ) , pralnia ( 10,5 m 2) , prysznic (1 m 2 ) i komunikacja;
=> B udynek mieszkalny wzniesiony w technologii tradycyjnej, murowanej na początku XX w., utrzymany w należytym stanie technicznym;
- dach kopertowy o konstrukcji drewnianej, kryty dachówką ceramiczną, karpiówką,
- stolarka okienna PCV,
- drzwi wejściowe drewniane, brama garażowa segmentowa, sterowana automatycznie,
- wyposażenie instalacyjne: instalacja elektryczna, wodno - kanalizacyjna, centralnego ogrzewania zasilana z dwufunkcyjnego pieca gazowego, telekomunikacyjna,
- zadbany ogród z licznymi nasadzeniami ozdobnymi,
- wszystkie media miejskie.
CENA: 1 450 000 zł
Niniejsza informacja nie stanowi oferty w rozumieniu kodeksu cywilnego.
Pośrednik odpowiedzialny zawodowo za realizację umowy pośrednictwa: Piotr Czajczyński - licencja zawodowa nr 10273.
::DODATKOWE INFORMACJE
Prąd: jest
Gaz: jest
Woda: jest
Dojazd: asfalt
Ogrzewanie: gazowe
Kanalizacja: tak
Linie telefoniczne: TAK
Internet: TAK
Komunikacja publ.: autobus
Drzwi antywłamaniowe: TAK
Teren ogrodzony: TAK
Okna: PCV
Balkon: jest
Liczba balkonów: 1
Wymiary działki [m]: 25x28
Zagosp. działki: zagospodarowana
Ukształtowanie działki: płaska
Kształt działki: prostokąt
Rodzaj domu: wolnostojący
Pokrycie dachu: dachówka ceramiczna
Powierzchnia użytkowa [m2]: 158
Stan budynku: do zamieszkania
Podpiwniczenie: nie
Garaż: dwustanowiskowy
Ogrodzenie działki: ogrodzona
Liczba pokoi: 5
Wysokość pomieszczeń [m]: 2,6500
::LINK DO STRONY
http://www.superlokum.pl/oferta.aspx?id=6888364
::KONTAKT DO AGENTA
Piotr Czajczyński
605 657 007
pcz@superlokum.pl
Pośrednik odpowiedzialny zawodowo za wykonanie umowy pośrednictwa: Piotr Czajczyński (licencja nr: 10273)
Lokalizacja:
- Kraj: Polska
- Wojewodztwo: Dolnośląskie
- Powiat: Świdnicki (pow.)
- Miejscowosc: Świdnica
- Ulica: Miernicza
(ref. A1540805126)