Dom, Rybarzowice, Buczkowice (gm.), 128 m²
Ogłoszeniodawca: Metrohouse Franchise S.A.
Kontakt: Alicja Bal
Informacje szczegółowe
- Dostępne od: 2024-11-28
- Tytuł ogłoszenia: Dom z garażem 4 pokoje Rybarzowice
- Nr oferty ogłoszeniodawcy: SDHAHY238
- Ulica: Wesoła
- Pow. działki: 300.00 m²
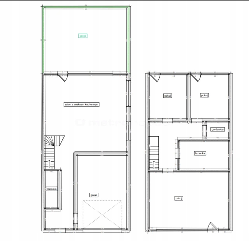
- Powierzchnia użytkowa: 128.00 m²
- Pokoje: 4
- Liczba łazienek: 2
- Typ rynku: Pierwotny
- Czy przy mieszkaniu jest ogródek: Nie
- Loggia: Nie
Budynek
- Rok budowy: 2024
- Materiał budowlany: pustak
Media
- woda (działka uzbrojona)
Udogodnienia
- obiekt zamknięty
- dostęp do drogi (asfaltowa/betonowa)
- miejsca parkingowe (garaż)
Dom w zabudowie bliźniaczej to nie tylko miejsce do zamieszkania, to inwestycja w przyszłość, gwar. spokoju i stabilności. Wyjątkowe położenie, niepowtarzalne warunki oraz możliwość indywidualnej aranżacji wnętrza to atuty, które z pewnością przekonają do siebie nawet najbardziej wymagających klientów.
- dom przystosowany pod SMART DOM
- 128 mkw dom
- 300 mkw działki
- okna 3 strefowe
- drzwi antywłamaniowe wejściowe
- automatyczna brama wjazdowa do garażu z systemem antywłamaniowym
- rolety zewnętrzne podtynkowe
- parter : salon z otwartą kuchnią , toaleta , garaż
- piętro: 3 pokoje , garderoba, duża łazienka
- zaledwie 2 minuty od S1
- dojazd do Bielsko- Białej, Żywca, Szczyrku około 8 min
- Oferuję również wykończenie do stanu deweloperskiego w kwocie około 130 tyś zł
Nieruchomość w stanie surowym zamkniętym, daje przyszłym właścicielom unikalną możliwość urządzenia wnętrza według własnych potrzeb i gustów. Taka opcja to świetna okazja, aby stworzyć dom marzeń, niezależnie od tego, czy preferujesz nowoczesny minimalizm, czy może bardziej klasyczne czy rustykalne rozwiązania.
Do wyboru macie Państwo 4 takie domy.
Zapraszam do kontaktu ! Alicja
Czy wiesz, że możemy przygotować dla Ciebie prezentację on-line nieruchomości? Skontaktuj się z naszym Agentem i zapytaj o szczegóły.
Pomimo, iż Doradcy Metrohouse przykładają szczególną staranność do rzetelnego prezentowania informacji o nieruchomości, nie zawsze jest możliwa weryfikacja wszystkich danych przekazanych od osób trzecich. Niniejsza prezentacja oferty nie jest ofertą w rozumieniu Kodeksu Cywilnego i ma charakter wyłącznie informacyjny.
Lokalizacja:
- Kraj: Polska
- Wojewodztwo: Śląskie
- Powiat: Bielski (pow.)
- Gmina wiejska: Buczkowice (gm.)
- Miejscowosc: Rybarzowice
- Ulica: Wesoła
(ref. A1539782426)