Dom, Piastów, Pruszkowski (pow.), 160 m²
Ogłoszeniodawca: "Klucz i Dom" Nieruchomości Sp. z o.o.
Kontakt: Beata Rudzińska
Informacje szczegółowe
- Forma własności: Własność
- Nr oferty ogłoszeniodawcy: KID01924101094
- Pow. działki: 662.00 m²
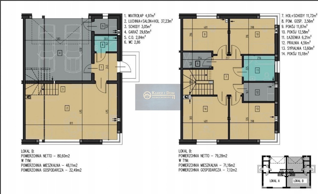
- Powierzchnia użytkowa: 160.00 m²
- Liczba pięter: 1
- Pokoje: 5
- Liczba łazienek: 2
- Liczba sypialni: 4
- Typ rynku: Wtórny
Budynek
- Rok budowy: 2021
- Materiał budowlany: bliźniak
Szanowni Państwo. Zapraszamy do zapoznania się z naszą stronią internetową gdzie często znajdziecie Państwo więcej ofert, informacji oraz zdjęć.
Połówka bliźniaka o powierzchni 160m2 w nowoczesnej bryle budynku z płaskim dachem posadowiony na działce o powierzchni 662m2. W budynku garaż na dwa samochody.
Media: prąd, gaz, woda i kanalizacja miejskie.
Parter:
- wiatrołap,
- salon z aneksem kuchennym,
- łazienka.
Piętro:
- 4 pokoje,
- łazienka,
- pralnia,
- garderoba.
Bliźniak wybudowany z betonu komórkowego, okna plastikowe, dach płaski pokryty papą. Stan wykończenia developerski ( tynki, wylewki podłogowe, ogrzewanie podłogowe, piec dwufunkcyjny + grzejniki ). Dodatkowo doprowadzone do budynku telewizja kablowa i internet światłowodowy.
Zabezpieczenia: system alarmowy, teren ogrodzony zamknięty, domofon / wideofon.
Dojazd drogą wewnętrzną, prywatną wyłożoną kostką .
Świetna lokalizacja, w odległości około 1 km do stacji kolejki SKM, WKD oraz autobusu komunikacji miejskiej. Dostęp do pełnej infrastruktury między innymi jest szkoła podstawowa, liceum, boisko, sklepy, urząd miasta itd.
Planowane oddanie inwestycji kwiecień 2022 roku.
Bardzo ciekawa oferta - zapraszam do obejrzenia.
Gwarantujemy bezpieczny zakup lub najem nieruchomości. Zapewniamy także fachowe doradztwo oraz pomoc w uzyskaniu kredytu bez dodatkowych kosztów.
Nota prawna
Opis oferty zawarty na stronie internetowej sporządzony jest na podstawie oględzin nieruchomości oraz informacji uzyskanych od właściciela, może podlegać aktualizacji i nie stanowi oferty określonej w art. 66 K.C. oraz innych właściwych przepisów prawnych.
Lokalizacja:
- Kraj: Polska
- Wojewodztwo: Mazowieckie
- Powiat: Pruszkowski (pow.)
- Gmina miejska: Piastów
(ref. A1534518087)