Dom, Piastów, Pruszkowski (pow.), 123 m²
Ogłoszeniodawca: HAPPY HOME Małgorzata Latusek
Kontakt: Małgorzata Latusek
Informacje szczegółowe
- Forma własności: Własność
- Tytuł ogłoszenia: Dom, stan deweloperski, 5 pokoi, Piastów
- Nr oferty ogłoszeniodawcy: 266140
- Ulica: Kujawska
- Pow. działki: 262.00 m²
- Powierzchnia użytkowa: 123.00 m²
- Liczba pięter: 2
- Pokoje: 5
- Liczba łazienek: 1
- Liczba sypialni: 4
- Typ rynku: Wtórny
Budynek
- Rok budowy: 2022
- Materiał budowlany: szeregowiec
KUPUJĄCY NIE PŁACI PROWIZJI
Mamy do zaoferowania dom w zabudowie szeregowej, w stanie deweloperskim, wybudowany w 2022 roku. Nieruchomość mieści się w Piastowie w powiecie pruszkowskim, zaledwie 500 m od granicy Warszawy.
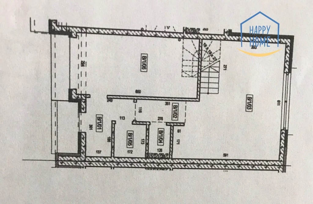
Parter:
- salon z aneksem kuchennym - 28,30m2
- korytarz - 3,21m2
- wiatrołap - 5,43m2
- WC - 2,18m2
- pomieszczenie gospodarcze - 2,97m2
- garaż - 18,28m2
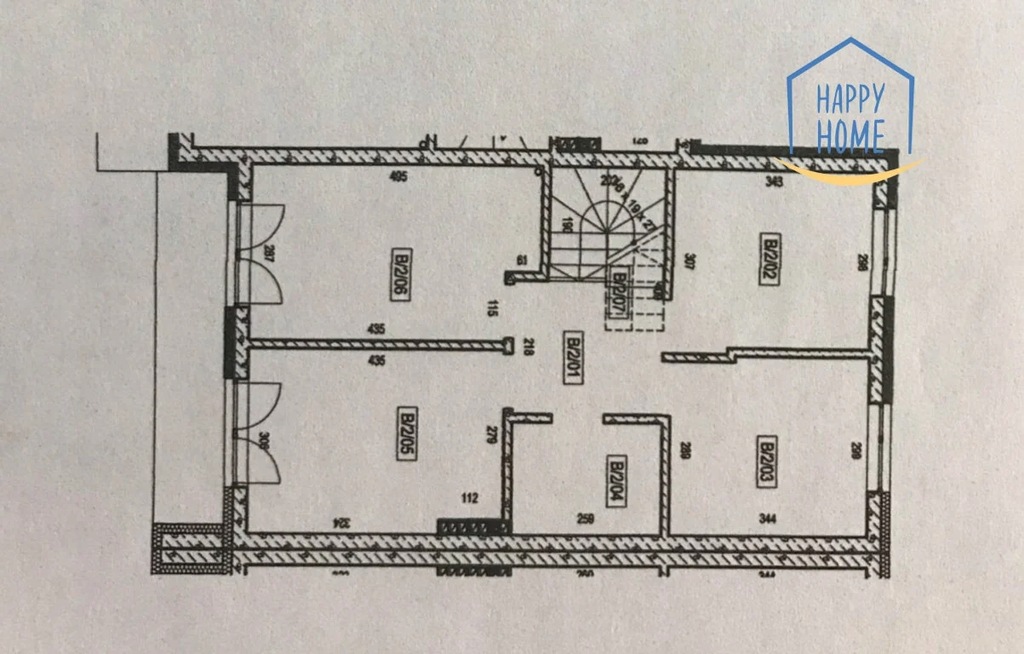
Piętro:
- pokój - 13,60m2
- pokój - 13,00m2
- pokój - 10,31m2
- pokój - 10,15m2
- łazienka - 4,84m2
- korytarz - 5,72m2
Bardzo dobra lokalizacja. Zaledwie 2 minuty pieszo do szkoły i przedszkola. W odległości 400m przystanek autobusowy, 900m do stacji PKP/SKM. 500m do Parku Handlowego Piast (Kaufland, McDonald's, Hebe, Empik, Media Expert, Pepco, Dealz, Deichmann, Maxi Zoo, Patio sklep budowlany).
Bezpośredni telefon do właścicielki: Anna 604141290
Zapraszam do kontaktu
Lokalizacja:
- Kraj: Polska
- Wojewodztwo: Mazowieckie
- Powiat: Pruszkowski (pow.)
- Gmina miejska: Piastów
- Ulica: Kujawska
(ref. A1536423332)