Dom, Piastów, Pruszkowski (pow.), 116 m²
Ogłoszeniodawca: KUBIAK Nieruchomości
Kontakt: Małgorzata Popławska
Informacje szczegółowe
- Forma własności: WŁASNOŚĆ
- Tytuł ogłoszenia: Nieduży, energooszczędny dom w Piastowie
- Nr oferty ogłoszeniodawcy: 5251/1989/ODS
- Pow. działki: 691.00 m²
- Powierzchnia użytkowa: 115.50 m²
- Pokoje: 4
- Liczba łazienek: 3
- Typ rynku: Pierwotny
Budynek
- Rok budowy: 2022
- Materiał budowlany: wolnostojący
- Materiał budowlany: bloczki
- Stan budynku: do wykończenia
Udogodnienia
- dostęp do drogi (utwardzona)
ZAKUP BEZ PODATKU PCC 2 % !!!
Wolnostojący, energooszczędny, nieduży dom na granicy Piastowa i Warszawy w stanie deweloperskim.
MOŻLIWOŚĆ WYKOŃCZENIA POD KLUCZ - do uzgodnienia.
Lokalizacja zapewnia doskonałe połączenie z wjazdem na A2 i S8
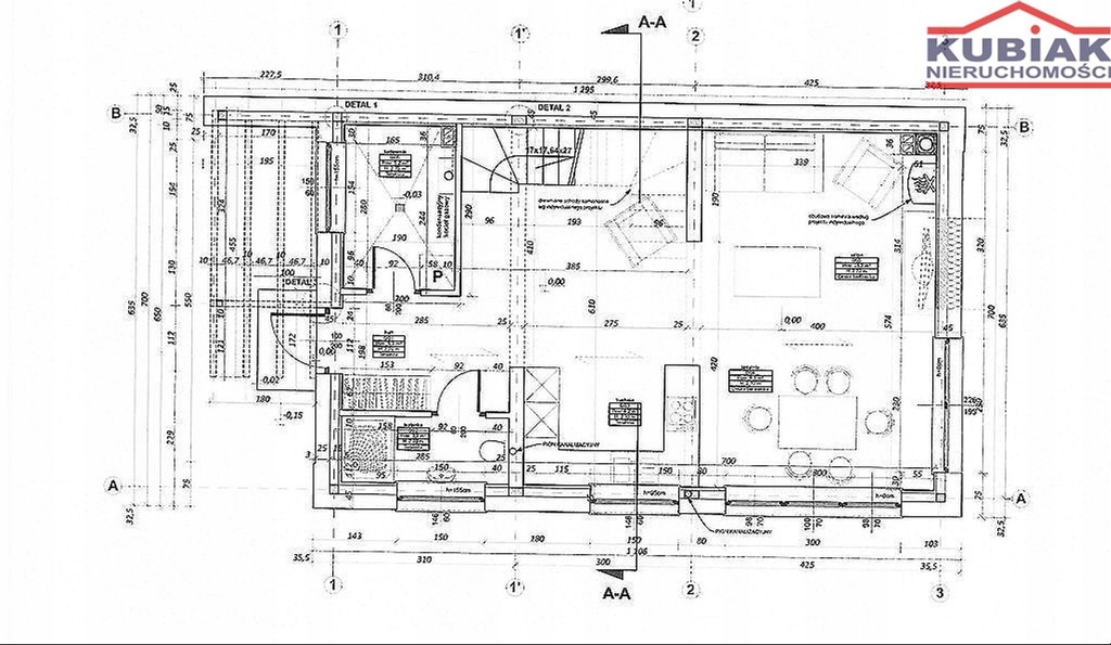
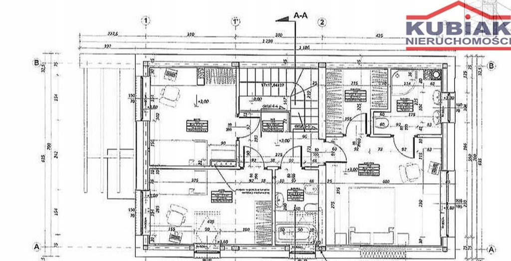
Budynek mieszkalny jednorodzinny o powierzchni całkowitej 115,5 m2 posadowiony na działce o pow. 691 m2. Powierzchnia użytkowa 105,2 m2.
Budynek wybudowany z bloczków styropianowych wypełnionych betonem, otynkowany tynkiem sylikonowym. Okna PCV, wylewka betonowa na podłogach, drzwi zewnętrzne metalowe ocieplone, antywłamaniowe z rekuperacją i przygotowanym miejscem pod fotowoltaikę, miesięczny koszt ogrzewania przy rekuperacji i fotowoltaice to ok 50 zł miesięcznie, zamontowany sterownik ogrzewania. Zamontowane ogrzewanie podłogowe na parterze i tradycyjne na piętrze.
Wszystkie media miejskie oprócz gazu.
Instalacja wodno-kanalizacyjna bez białego montażu. Rzuty w załączeniu.
PARTER: (57 m2): hall 5,9 m2, łazienka 3,25m2, kuchnia 6,2 m2, jadalnia 8,3 m2, salon 28,2 m2, kotłownia 5,2m2
PIĘTRO: (58,5m2): 3 sypialnie (11,1m2 + 10,1m2 + 18,96m2 + łazienka 4,4 m2 i garderoba 4,3 m2), hol 4,6 m2, łazienka 3,9m2, klatka schodowa 5,1m2.
Wszędzie tynki gipsowe, gładzie i ściany pomalowane na biało.
Cena nie zawiera instalacji fotowoltaicznej.
Polecam i serdecznie zapraszam do oglądania.
Małgorzata Popławska
883 703 608, 22 723 62 82
Numer licencji osoby odpowiedzialnej zawodowo 2959.
Więcej ofert na www.domkubiak.pl
Numer licencji pośrednika odpowiedzialnego zawodowo 2959.
Firma "Kubiak Nieruchomości" nie wyraża zgody na kopiowanie w części ani w całości treści powyższego ogłoszenia oraz wykorzystywanie zdjęć przez inne podmioty niż do tego upoważnione. (art. 1 ust.1 UOPA)
Oferta wysłana z programu dla biur nieruchomości ASARI CRM (asaricrm.com)
Lokalizacja:
- Kraj: Polska
- Wojewodztwo: Mazowieckie
- Powiat: Pruszkowski (pow.)
- Gmina miejska: Piastów
(ref. A1535455009)