Dom, Piastów, Piastów, 110 m²
Ogłoszeniodawca: "Klucz i Dom" Nieruchomości Sp. z o.o.
Kontakt: Lena Wiśnioch
Informacje szczegółowe
- Nr oferty ogłoszeniodawcy: KID01334717179
- Pow. działki: 250.00 m²
- Powierzchnia użytkowa: 110.00 m²
- Liczba pięter: 1
- Pokoje: 4
- Liczba łazienek: 2
- Typ rynku: Wtórny
Budynek
- Rok budowy: 2023
- Materiał budowlany: szeregowiec
- Stan budynku: do wykończenia
Szanowni Państwo. Zapraszamy do zapoznania się z naszą stronią internetową gdzie często znajdziecie Państwo więcej ofert, informacji oraz zdjęć.
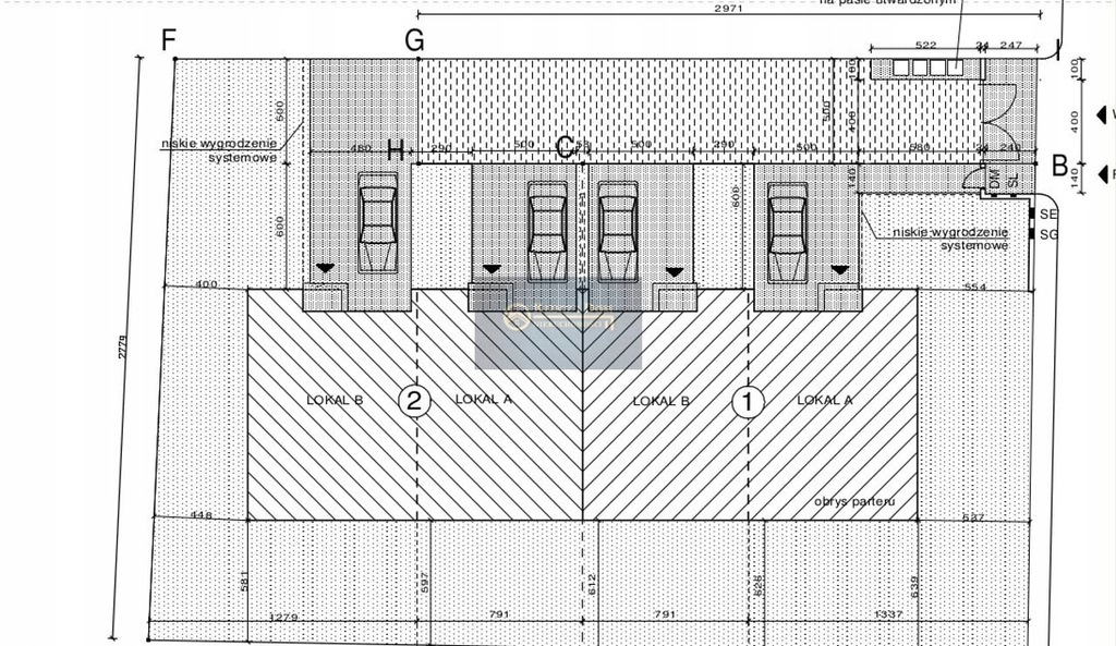
Nowa inwestycja, która składa się z 4 lokali.
Skrajnysegment o powierzchni (132,42m²). Ogródek 200m ²
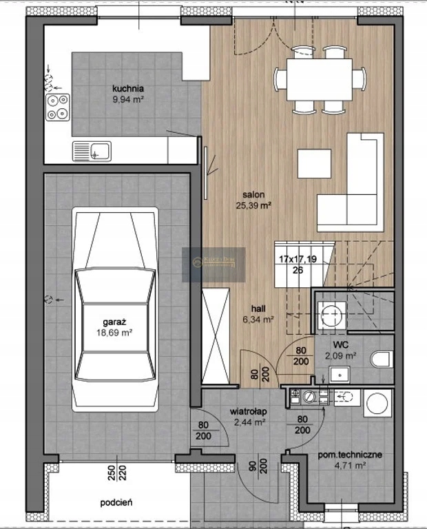
Parter: salon (19m²), kuchnia (10m²), hall (6,34m²), WC (2m²), pomieszczenie techniczne (4,7m²), wiatrołap (2,5m²) oraz garaż ( 17m²).
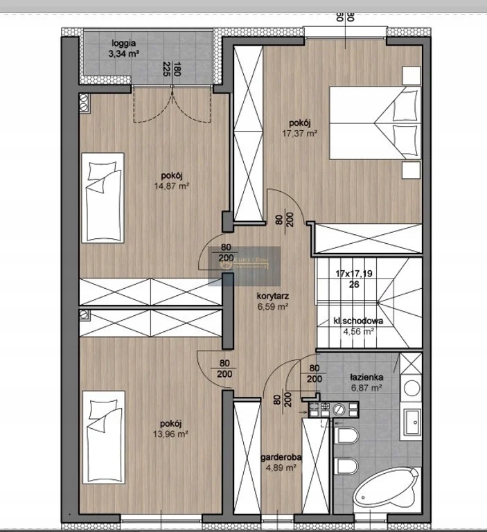
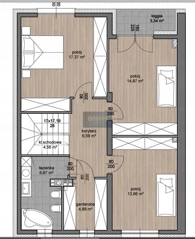
Piętro: pokoje (17, 15, 14m²), garderoba (5m²), łazienka (7m²) i korytarz 7m²).
Istnieje możliwość adaptacji poddasza.
Każdy z lokali będzie posiadał 2 miejsca postojowe: 1 miejsce postojowe w
garażu i 1 miejsce postojowe na utwardzonych kostką betonową podjazdach przed budynkami.
Media: prąd, gaz, internet, telefon, kanalizacja, woda. OC gazowe. Na parterze OC podłogowe.
Zabezpieczenia: system alarmowy, drzwi / okna antywłamaniowe, teren zamknięty, domofon / wideofon
W bardzo bliskiej odległości znajdują się : dworzec PKP -1,2km, szkoły nr.2 i nr.5, -900m.
Planowany odbiór sierpień 2024r.
Zapraszam na prezentacje.
Gwarantujemy bezpieczny zakup lub najem nieruchomości. Zapewniamy także fachowe doradztwo oraz pomoc w uzyskaniu kredytu bez dodatkowych kosztów.
Nota prawna
Opis oferty zawarty na stronie internetowej sporządzony jest na podstawie oględzin nieruchomości oraz informacji uzyskanych od właściciela, może podlegać aktualizacji i nie stanowi oferty określonej w art. 66 K.C. oraz innych właściwych przepisów prawnych.
Lokalizacja:
- Kraj: Polska
- Wojewodztwo: Mazowieckie
- Powiat: Pruszkowski (pow.)
- Gmina miejska: Piastów
- Miejscowosc: Piastów
(ref. A1535706865)