Dom, Piaseczno, Piaseczno (gm.), 237 m²
Ogłoszeniodawca: Kancelaria Nieuchomości Exclusiva
Kontakt: Exclusiva
Informacje szczegółowe
- Forma własności: własność
- Stan nieruchomości: bardzo dobry
- Nr oferty ogłoszeniodawcy: 2534
- Ulica: Wola Gołkowska
- Pow. działki: 1000.00 m²
- Powierzchnia użytkowa: 237.00 m²
- Długość działki: 45.00 m²
- Szerokość działki: 22.00 m²
- Pokoje: 6
Budynek
- Rok budowy: 2011
- Materiał budowlany: wolnostojący
- Materiał budowlany: cegła
- Stan budynku: bardzo dobry
Media
- kanalizacja (miejska)
Udogodnienia
- internet
Dom Jednorodzinny wolnostojący z podwójnym garażem, duży OGRÓD z AUTOMATYCZNYM nawadnianiem.
PIĘKNA i CICHA OKOLICA, niewysoki LASEK BRZOZOWY za oknem, SIELSKI KRAJOBRAZ, żadnych STARYCH DOMÓW w POBLIŻU
NOWOCZESNE DOMKI JEDNORODZINNE w SĄSIEDZTWIE bardzo NIEINTENSYWNA ZABUDOWA usankcjonowana w planie zagospodarowania przestrzennego.
DOBRA KOMUNIKACJA. 150m utwardzonej drogi do asfaltu(przystanek komunikacji podmiejskiej - Warszawa Wilanowska 727), 1km do Puławskiej Bis (projektowana droga ekspresowa), 5km do Piaseczna (10min brak korków),10min do przystanku kolei podmiejskiej w Zalesiu Dolnym(połączenie do Wa-wy), 7km Magdalenka/Aleja Krakowska (10-15min),Centrum Janki 20min.
Dom z cegły ceramicznej, dachówki ceramicznej, kominek, instalacja alarmowa i niskoprądowa (szybki internet, WIFI router), podwójna instalacja telewizyjna (możliwość oglądania równocześnie tv w każdym pokoju), ODKURZACZ CENTRALNY - instalacja, OGRZEWANIE PODŁOGOWE dodatkowo. LEDowe oświelenie zewnętrzne.
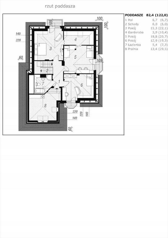
6 POKOI(z sypialnią), garderoba, 2 łazienki, mały strych z pomieszczeniem do wykorzystania, 3 balkony + taras, garaż 2 STANOWISKOWY z automatyczną bramą.
Powierzchnia mieszkalna 200m2
Lokalizacja:
- Kraj: Polska
- Wojewodztwo: Mazowieckie
- Powiat: Piaseczyński (pow.)
- Gmina miejsko-wiejska: Piaseczno (gm.)
- Miejscowosc: Piaseczno
- Ulica: Wola Gołkowska
(ref. A1537737855)