Dom, Piaseczno, Piaseczno (gm.), 187 m²
Ogłoszeniodawca: Jakub Cudziło
Kontakt: Jakub Cudziło
Informacje szczegółowe
- Forma własności: własność
- Dostępne od: 2022-11-03
- Tytuł ogłoszenia: Energooszczędny Dom | Borowina | 6 pokoi | Zielona Okolica
- Nr oferty ogłoszeniodawcy: 1-1
- Pow. działki: 915.00 m²
- Powierzchnia użytkowa: 186.64 m²
- Pokoje: 6
- Typ rynku: Pierwotny
Budynek
- Rok budowy: 2021
- Stan budynku: do wykończenia
Media
- gaz (miejski)
- kanalizacja (miejska)
- woda (miejskie)
Udogodnienia
- miejsca parkingowe (garaż)
Na sprzedaż piękny, energooszczędny dom w Borowinie (Gmina Konstancin-Jeziorna) usytuowany 400m od Chojnowskiego Parku Krajobrazowego. Budynek został zaprojektowany w niezwykle funkcjonalny sposób i wykończony pod własne potrzeby materiałami najwyższej klasy. Spokojna okolica, dobra lokalizacja oraz zielone tereny czynią tę ofertę wyjątkowo atrakcyjną.
Udogodnienia:
- rekuperacja,
- okna 3-szybowe IHS,
- ogrzewanie podłogowe w całym domu,
- 30 lat gwarancji na dach,
- światłowód,
- wideofon,
- automatyczna brama wjazdowa i garażowa,
- duży taras.
Powierzchnia całkowita: 186,64 m2
Powierzchnia użytkowa: 142,5 m2
Powierzchnia działki: 915 m2
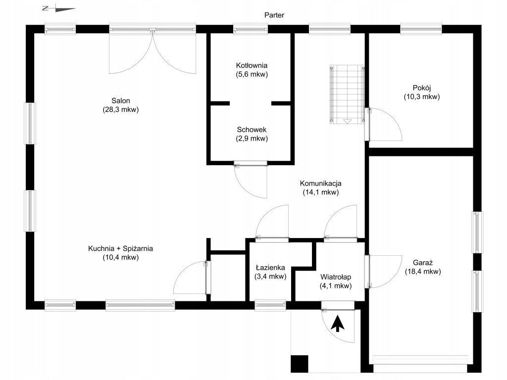
Na Parter o powierzchni 97,3 m2 składa się:
- salon + aneks kuchenny 38,8 m2,
- łazienka 3,4 m2,
- pokój gospodarczy + schowek 8,4 m2,
- wiatrołap + hol 18,2 m2,
- sypialnia 10,3 m2,
- garaż 18,4 m2.
Na piętro o powierzchni 89,3 m2 składa się:
- sypialnia 20 m2,
- sypialnia 17,7 m2,
- sypialnia 13,3 m2,
- sypialnia 17,2 m2,
- garderoba 5 m2,
- łazienka 8,7 m2,
- hol 7,2 m2.
Jeśli zakup tej nieruchomości wiąże się ze sprzedażą innej - daj mi znać! Chętnie pomogę Ci przejść przez ten proces.
Zapraszam do kontaktu.
Jakub Cudziło
664 764 478
Niniejsze ogłoszenie nie stanowi oferty w rozumieniu art. 66 par. 1 Kodeksu cywilnego.
Lokalizacja:
- Kraj: Polska
- Wojewodztwo: Mazowieckie
- Powiat: Piaseczyński (pow.)
- Gmina miejsko-wiejska: Piaseczno (gm.)
- Miejscowosc: Piaseczno
(ref. A1536941004)