Dom, Piaseczno, Piaseczno (gm.), 172 m²
Ogłoszeniodawca: Conse Group
Kontakt: Olimpia Kazberuk
Informacje szczegółowe
- Forma własności: Własność
- Dostępne od: 2023-03-31
- Nr oferty ogłoszeniodawcy: 327629
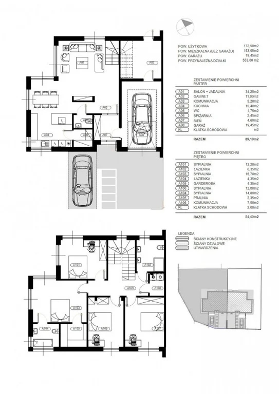
- Pow. działki: 550.00 m²
- Powierzchnia użytkowa: 172.00 m²
- Liczba pięter: 1
- Pokoje: 6
- Liczba łazienek: 2
- Liczba sypialni: 4
- Typ rynku: Pierwotny
- Czy przy mieszkaniu jest ogródek: Tak
Budynek
- Rok budowy: 2023
- Materiał budowlany: bliźniak
- Materiał budowlany: bloczki
- Stan budynku: do wykończenia
Media
- woda (miejskie)
Udogodnienia
- dostęp do drogi (nieutwardzona)
- ogrodzenie (siatka)
- miejsca parkingowe (parking naziemny)
***Zakup bez PCC i prowizji***
Nowoczesny projekt architektoniczny zakładający budowę 6 domów w zabudowie bliźniaczej. Położonych w dogodnej lokalizacji (w Głoskowie) zapewniającej wygodę życia dzięki bogatej infrastrukturze społecznej.
W pobliżu:
- Szkoła -700m,
- Przedszkole - 1900m
- Sklep - 900m
- Nowa trasa S7 - 2km
- dostępne w pobliżu autobusy L12, 727
Budynki budowane w wysokim standardzie z dbałością o szczegóły . Układ domu dokładnie przemyślany i zaprojektowany tak aby użytkowanie było jak najbardziej komfortowe dla jego mieszkańców.
Udogodnienia:
- Ogrzewanie podłogowe w całym domu
- rekuperacja wraz z osprzętem
- klimatyzacja wraz z osprzętem
- pompa ciepła
- instalacja pod fotowoltaikę
- odkurzacz centralny (również w garażu)
- w garażu gniazdo ładowania samochodów elektrycznych
- napęd do bramy garażowej, oraz czujki ruchu przy wjeździe do garażu (zapewniające bezpieczeństwo dzieciom)
- instalacja alarmowa
- instalacja monitoringu
- ledowe oświetlenie zewnętrzne
Powierzchnia domów 172m2 powierzchnie działek od 452m2 do 553m2.
Cena od 1 200 000zł do 1 300 000zł
Dostępne są dwa warianty domów:
1) dom sześciopokojowy, w którym piętro stanowią: cztery duże sypialnie, gdzie jedna z nich posiada własną łazienkę i garderobę, łazienki ogólnodostępnej oraz pralni. Parter to duża przestrzeń salonu połączonego z kuchnią, toaleta, gabinet, sień oraz garaż w bryle budynku.
2) Pięciopokojowy dom z tarasem, gdzie piętro składa się z trzech dużych sypialni (w tym master bedroom z osobną łazienką), 38m2 tarasu oraz ogólnodostępnej łazienki. Parter to sień, toaleta, duży salon z widną kuchnią, oraz pokój gościnny/ biurowy z własną łazienką.
Termin oddania marzec 2023r.
Zadzwoń i umów spotkanie.
***Purchase without PCC and commission***
***Easy purchase for foreigners***
A modern architectural design involving the construction of 6 semi-detached houses. Located in a convenient location (in Głosków) that ensures the comfort of living thanks to the rich social infrastructure.
Near:
- School -700m,
- Kindergarten - 1900m
- Shop - 900m
- New route S7 - 2km (25min. to Mokotów)
Buildings built to a high standard with attention to detail. The layout of the house is carefully thought out and designed so that its use is as comfortable as possible for its inhabitants.
Amenities:
- Underfloor heating throughout the house
- recuperation with accessories
- air conditioning with accessories
- heat pump
- photovoltaic installation
- central vacuum cleaner (also in the garage)
- electric car charging socket in the garage
- drive for the garage door, and motion detectors at the entrance to the garage (ensuring the safety of children)
- alarm installation
- monitoring installation
- LED external lighting
The house is 172m2, the plots range from 452m2 to 553m2.
Price from 1 200 000zł to 1 300 000zł.
There are two variants of houses:
1) a six-room house, where the first floor consists of: four large bedrooms, one of which has its own bathroom and wardrobe, a shared bathroom and a laundry room. In ground floor we have a large space of a living room combined with a kitchen, a toilet, a study, a hall and a garage in the body of the building.
2) A five-room house with a terrace, where the first floor consists of three large bedrooms (including a master bedroom with a separate bathroom), a 38m2 terrace and a shared bathroom. On the ground floor there is a hall, a toilet, a large living room with a bright kitchen, and a guest/office room with its own bathroom.
Completion date March 2023.
Call and arrange a meeting.
Lokalizacja:
- Kraj: Polska
- Wojewodztwo: Mazowieckie
- Powiat: Piaseczyński (pow.)
- Gmina miejsko-wiejska: Piaseczno (gm.)
- Miejscowosc: Piaseczno
(ref. A1536560740)