Dom, Piaseczno, Piaseczno (gm.), 160 m²
Ogłoszeniodawca: Emmerson Zarządzanie Sp. z o.o.
Kontakt: Kamila Skorża
Informacje szczegółowe
- Forma własności: Własność
- Tytuł ogłoszenia: Dom Piaseczno
- Nr oferty ogłoszeniodawcy: DS-107090
- Ulica: Brzezińska
- Pow. działki: 330.00 m²
- Powierzchnia użytkowa: 160.00 m²
- Liczba pięter: 2
- Pokoje: 4
- Liczba łazienek: 2
- Liczba sypialni: 3
- Typ rynku: Wtórny
- Taras: Tak
- Czy przy mieszkaniu jest ogródek: Tak
Budynek
- Rok budowy: 2002
- Materiał budowlany: bliźniak
- Materiał budowlany: zróżnicowany
- Stan budynku: bardzo dobry
Udogodnienia
- balkon
- internet
- linia telefoniczna
- dostęp do drogi (asfaltowa/betonowa)
- ogrodzenie (inne)
Dom na kameralnym cichym osiedlu w Piasecznie.
Dom (pół bliźniaka) usytuowany na niewielkim bardzo ładnym osiedlu, w cichej i spokojnej okolicy zabudowanej domami jednorodzinnymi.
W pobliżu szkoła publiczna, przedszkole oraz przystanki komunikacji miejskiej. Lokalizacja zapewnia dogodne połączenie z Warszawą zarówno przez Piaseczno, jak i przez Konstancin.
Dom usytuowany jest na otoczonej zielenią 330 metrowej działce (drzewa, krzewy, dobrze utrzymany trawnik, elegancki taras z drewna egzotycznego z wygodnym stołem ogrodowym).
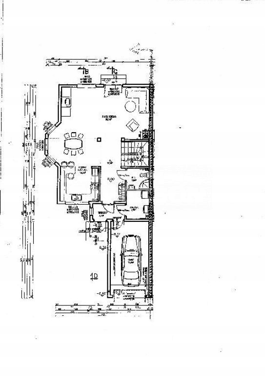
Przestronny parter, salon wyposażony w piec kominkowy połączony z jadalnią w wykuszu oraz dalej z wygodną, jasną kuchnią. Na parterze znajduje się też łazienka z prysznicem.
Na piętrze zlokalizowane są trzy sypialnie oraz przestronna łazienka z oknem. We wszystkich pokojach zamontowano duże szafy garderobiane z drzwiami przesuwnymi.
W domu znajduje się również pomieszczenie gospodarcze z urządzoną pralnią oraz wygodny schowek na antresoli nad garażem.
Zamontowano instalację alarmową z podłączeniem do monitoringu oraz antenę satelitarną. Budynek jest podłączony do stacjonarnej linii telefonicznej z dostępem do internetu. Wszystkie elementy stałe (m.in. zabudowa kuchni, szafy wnękowe, piec kominkowy) pozostają.
Całość bardzo dobrze utrzymana, nadaje się do natychmiastowego zamieszkania. Powierzchnia całkowita - 160 m.kw., użytkowa - 140 m.kw.
Polecam i zapraszam na prezentację!
Wszelkie informacje dotyczące nieruchomości zamieszczone przez Emmerson nie stanowią oferty w rozumieniu Kodeksu Cywilnego. Dokładamy najwyższej staranności, aby przedmiotowe informacje były zaprezentowane możliwe najbardziej szczegółowo i wyczerpująco, jednak wobec faktu, że pochodzą one od innych osób, Emmerson nie ponosi odpowiedzialności za ich szczegółowość i dokładność.
Lokalizacja:
- Kraj: Polska
- Wojewodztwo: Mazowieckie
- Powiat: Piaseczyński (pow.)
- Gmina miejsko-wiejska: Piaseczno (gm.)
- Miejscowosc: Piaseczno
- Ulica: Brzezińska
(ref. A1531165859)