Dom, Piaseczno, Piaseczno (gm.), 156 m²
Ogłoszeniodawca: KOLOSEUM NIERUCHOMOŚCI
Kontakt: Klaudia Popiel
Informacje szczegółowe
- Forma własności: Własność
- Dach: Jednospadowy
- Tytuł ogłoszenia: Dom w fajnej lokalizacji! Blisko Warszawy
- Nr oferty ogłoszeniodawcy: 481396
- Pow. działki: 450.00 m²
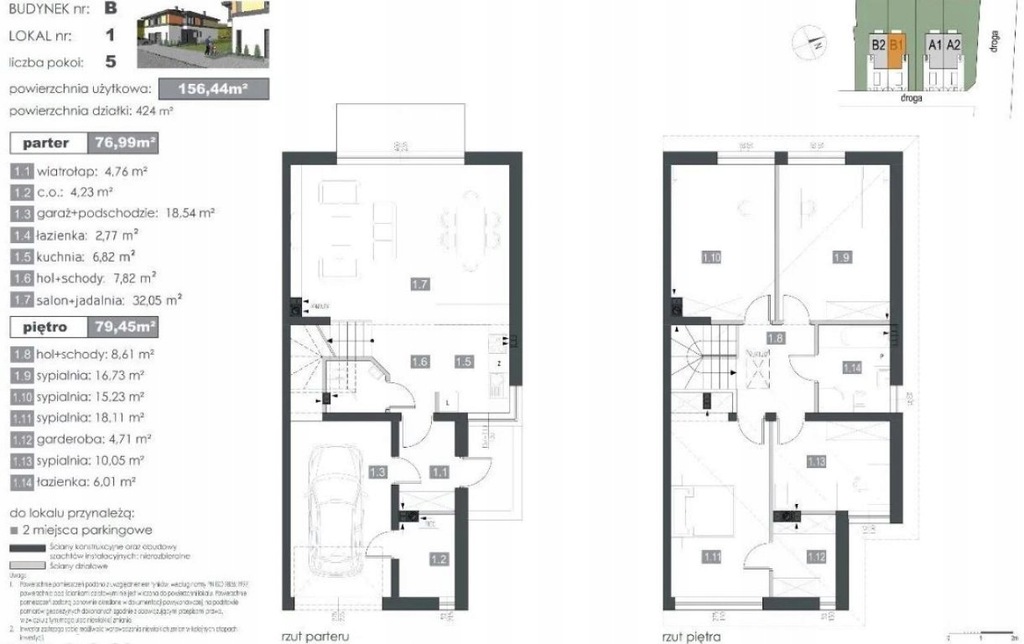
- Powierzchnia użytkowa: 156.00 m²
- Pokoje: 4
- Liczba łazienek: 2
- Czy łazienka z WC: Razem
- Typ rynku: Wtórny
Budynek
- Rok budowy: 2019
- Materiał budowlany: bliźniak
- Materiał budowlany: pustak
- Stan budynku: do wykończenia
Udogodnienia
- dostęp do drogi (asfaltowa/betonowa)
Opis lokalu:
4-pokojowy dom w doskonałej lokalizacji. Świetny dojazd do Centrum Warszawy.
Dom w stanie deweloperskim. Dobry rozkład pomieszczeń.
W skład nieruchomości wchodzi:
Parter:
- salon z kuchnią oraz jadalnią ok. 42m2,
- łazienka,
- pomieszczenie gospodarcze,
- garaż.
Piętro:
- pokój I, II, III, IV (10m2, 15m2, 17m2, 18 m2) jeden pokój z garderobą,
- łazienka.
Poddasze nieużytkowe.
Lokalizacja:
Piaseczno, skrzyżowanie ulic Ignacego Krasickiego z Postępu.
Komunikacja:
- autobusy,
- PKP.
Serdecznie zapraszam do kontaktu!
Doradca ds. nieruchomości
Klaudia Popiel
Więcej ofert na
Niniejsza informacja nie stanowi oferty w rozumieniu Kodeksu Cywilnego. Dokładamy wszelkich starań, aby informacje dotyczące oferowanych obiektów były możliwie dokładne, kompletne i aktualne. Ze względu jednak na fakt, iż informacje te pochodzą od osób trzecich i nie zawsze dają się zweryfikować, firma KOLOSEUM NIERUCHOMOŚCI nie ponosi odpowiedzialności za ich dokładność, kompletność oraz aktualność
Numer licencji pośrednika odpowiedzialnego za ofertę: 19837
Lokalizacja:
- Kraj: Polska
- Wojewodztwo: Mazowieckie
- Powiat: Piaseczyński (pow.)
- Gmina miejsko-wiejska: Piaseczno (gm.)
- Miejscowosc: Piaseczno
(ref. A1531981776)