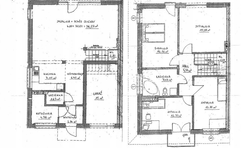
Dom, Piaseczno, Piaseczno (gm.), 147 m²
Ogłoszeniodawca: Kancelaria Nieuchomości Exclusiva
Kontakt: Agent Exclusiva
Informacje szczegółowe
- Forma własności: własność
- Stan nieruchomości: bardzo dobry
- Nr oferty ogłoszeniodawcy: 4875
- Ulica: Kąty Tomice
- Pow. działki: 460.00 m²
- Powierzchnia użytkowa: 147.00 m²
- Pokoje: 5
Budynek
- Rok budowy: 2015
- Materiał budowlany: bliźniak
- Materiał budowlany: cegła
- Stan budynku: bardzo dobry
Media
- kanalizacja (miejska)
Nowy budynek w zabudowie bliźniaczej o powierzchni 147,00 m2 z 5 pokojami i garażem na działce 460 m2 Posiada 2 pełne kondygnacje (piętro bez skosów). W salonie przygotowany kanał spalinowy do kominka.
Budynek jest wykonany z porothermu gr 25 cm, na elewacji styropian gr 15 cm, nad drugą kodygnacją docieplenie poddasza welną mineralną gruności 30cm , strop żelbetowy monolityczny, okna trzy szybowe ,brama garażowa segmentowowa w kolorze okien, na dachu blachodachówka .
Wszystkie media- gaz, kanalizacja, woda, prąd,, telefon, internet
BUDYNEK Z TYNKAMI WEWNĘTRZNYMI I WYLEWKAMI,
INSTALACJĄ ELEKTRYCZNĄ,
INSTALACJĄ ALARMOWĄ,
INSTALACJĄ CENTRALNEGO OGRZEWANIA, WODNĄ
INSTALACJĄ KANALIZACYJNĄ ORAZ GAZOWĄ
Szkoła, przedszkole,asfalt do samego budynku..
Położony w gminie Piaseczno, w powiecie piaseczyńskim w malowniczej miescowości jaką są Tomice.
Kupujacy nie płaci podatku od transakcji 2% (PCC) - jedynie opłaca notariusza
Lokalizacja:
- Kraj: Polska
- Wojewodztwo: Mazowieckie
- Powiat: Piaseczyński (pow.)
- Gmina miejsko-wiejska: Piaseczno (gm.)
- Miejscowosc: Piaseczno
- Ulica: Kąty Tomice
(ref. A1537738099)