Dom, Piaseczno, Piaseczno (gm.), 140 m²
Ogłoszeniodawca: Marta Maćkowska Nieruchomości
Kontakt: Marta Maćkowska
Informacje szczegółowe
- Typ kuchni: otwarta
- Stolarka okienna: PCV
- Tytuł ogłoszenia: " INWESTYCJA ZAKOŃCZONA "
- Nr oferty ogłoszeniodawcy: 17
- Pow. działki: 500.00 m²
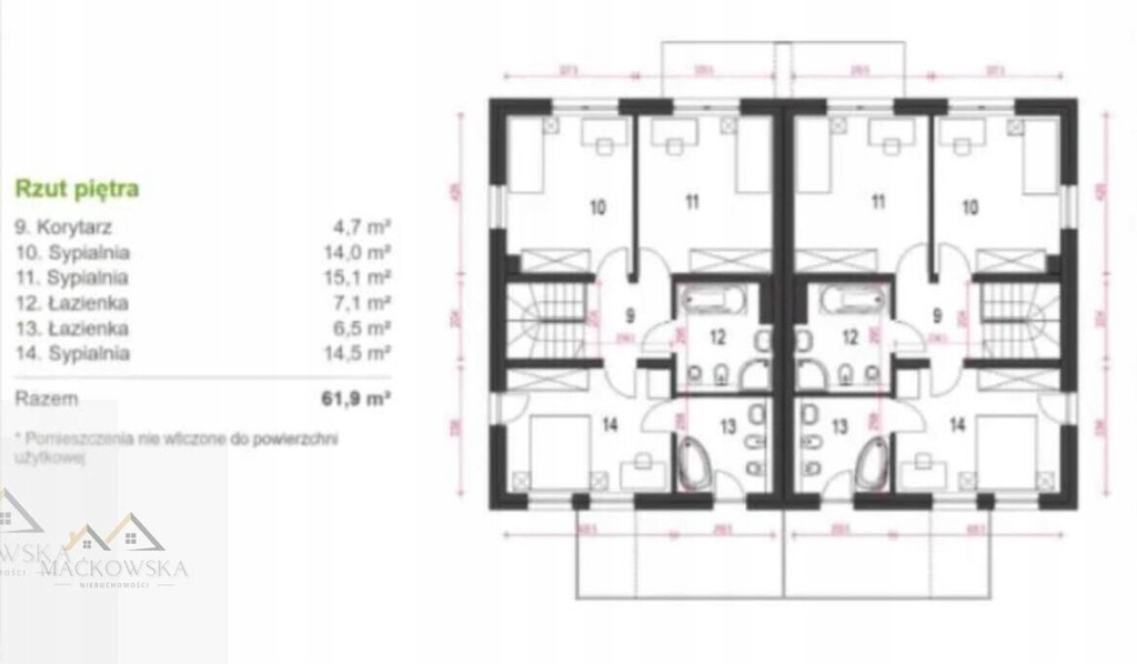
- Powierzchnia użytkowa: 140.00 m²
- Liczba pięter: 1
- Pokoje: 5
- Liczba łazienek: 2
- Liczba sypialni: 4
- Typ rynku: Pierwotny
Budynek
- Materiał budowlany: bliźniak
- Materiał budowlany: zróżnicowany
- Stan budynku: bardzo dobry
Media
- gaz (brak)
- kanalizacja (miejska)
- woda (miejskie)
Udogodnienia
- dostęp do drogi (asfaltowa/betonowa)
- miejsca parkingowe (garaż)
Dzień dobry,
Mam przyjemność zaprezentować Państwu dwa bliźniaki w stanie deweloperskim w doskonałej lokalizacji !!!
STANDARD DEWELOPERSKI PLUS !!!
Komfortowy rozkład pomieszczeń i duża działka to nie wątpliwie duży atut nieruchomości. Domy składają się z parteru gdzie mamy gabinet, salon połączony z kuchnią i jadalnią. Na piętrze mamy 3 sypialnie z czego jedna z prywatną łazienką oraz dużą łazienkę dla wszystkich domowników. Cena zawiera stan deweloperski budynek wybudowany z cegły H+H, instalacje wodno-kanalizacyjna, elektryczna, gazowa. Tynk silikatowy, tynki wewnętrzne gipsowe.
Podłogówka na obu poziomach, instalacja alarmowa, TV, internetowa
w cenie automatyka do bram. Piec gazowy , odwodnienie terenu. Domy doprecyzowane w każdym detalu. Dojazd drogą asfaltową.
Idealna lokalizacja około 3 kilometry do centrum Piaseczna.
Zachęcam do obejrzenia !!!
Marta Maćkowska tel. 690 622 028
e-mail biuro@mackowska.nieruchomosci.pl
Treść niniejszego ogłoszenia nie stanowi oferty handlowej w rozumieniu Kodeksu Cywilnego . Staram się, aby informacje dotyczące oferowanych obiektów były możliwie dokładne, kompletne i aktualne. Ze względu jednak na fakt, iż informacje te pochodzą od osób trzecich i nie zawsze dają się zweryfikować, Marta Maćkowska Nieruchomości nie ponosi odpowiedzialności za ich dokładność, kompletność oraz aktualność.
Lokalizacja:
- Kraj: Polska
- Wojewodztwo: Mazowieckie
- Powiat: Piaseczyński (pow.)
- Gmina miejsko-wiejska: Piaseczno (gm.)
- Miejscowosc: Piaseczno
(ref. A1537116934)