Dom, Piaseczno, Piaseczno (gm.), 130 m²
Ogłoszeniodawca: Conse Group
Kontakt: Olimpia Kazberuk
Informacje szczegółowe
- Forma własności: Własność
- Dostępne od: 2023-06-30
- Tytuł ogłoszenia: Segment 4-5 pok. w cichej okolicy!
- Nr oferty ogłoszeniodawcy: 759759
- Pow. działki: 200.00 m²
- Powierzchnia użytkowa: 130.00 m²
- Liczba pięter: 1
- Pokoje: 5
- Liczba łazienek: 1
- Liczba sypialni: 4
- Typ rynku: Pierwotny
- Czy przy mieszkaniu jest ogródek: Tak
Budynek
- Rok budowy: 2023
- Materiał budowlany: szeregowiec
- Materiał budowlany: cegła
- Stan budynku: do wykończenia
Media
- woda (miejskie)
Udogodnienia
- dostęp do drogi (utwardzona)
- ogrodzenie (siatka)
- miejsca parkingowe (parking naziemny)
Marzysz o własnym domie z ogródkiem, i tak ważną przestrzenią dla twojej rodziny?
Mam coś w sam raz dla ciebie!!
***Zakup bezprowizyjny i bez PCC***
Moja propozycja to domy w zabudowie szeregowej o nowoczesnej architekturze, oraz bardzo funkcjonalnym wnętrzu.
Doskonała lokalizacja inwestycji, która umiejscowiona jest w Łoziskach -na pograniczu Piaseczna i Lesznowoli, w odległości 4 km od granicy z Ursynowem.
Lokalizacja zapewnia bliskość sklepów, szkół, przychodni oraz szybki dojazd do Warszawy dzięki znajdującym się w niedalekiej odległości (zaledwie 2 km) nowej trasie S7, jak i stacja kolejowej Nowa Iwiczna.
Dzieci natomiast mogą dojechać do szkoły podstawowej dzięki specjalnym autobusom szkolnym kursującym tuż przy inwestycji.
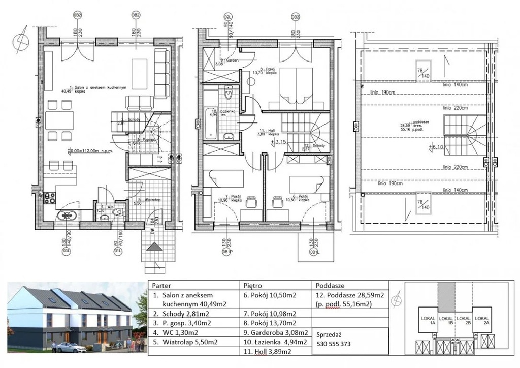
Powierzchnia domu 130m2 w tym:
Parter:
- wiatrołap 5,5m2
- salon z widnym aneksem kuchennym 40,49m2
- toaleta 1,30m2
- pomieszczenie gospodarcze 3,4m2
Piętro:
-pokój 13,70m2 z garderobą 3,08m2
- holl 3,89m2
- pokój 10,50m2
- pokój 10,98m2
- łazienka 4,94m2
Poddasze do możliwej aranżacji 28,59m2 (po podłodze 55,16m2)
Domy posiadają:
- wszystkie media miejskie
- ogrzewanie podłogowe w całym domu
- instalacje wentylacji mechanicznej
- między domami podwójną ścianę z cegły akustycznej WINERBERGER ACU,
- dwa miejsca postojowe
Termin realizacji czerwiec 2023r
W ofercie:
- segment 130m2 na 180m2 działce - w cenie 740 000zł
- segment skrajne 131m2 na 330m2 działce w cenie 790 000zł
Zachęcam do obejrzenia.
Tel. 530 555 373
Lokalizacja:
- Kraj: Polska
- Wojewodztwo: Mazowieckie
- Powiat: Piaseczyński (pow.)
- Gmina miejsko-wiejska: Piaseczno (gm.)
- Miejscowosc: Piaseczno
(ref. A1536475007)