Kajtek 40m2
Nasza oferta powstała z myślą o znacznym obniżeniu kosztów postawienia własnego M. Technologię dostosowaliśmy w taki sposób, aby maksymalnie uprościć montaż domu. Każdy kto potrafi zmontować szafkę z Ikea, potrafi (z pomocą 2 osób) zmontować każdy dom z naszej oferty. Jeśli stanowi do dla Ciebie problem, możemy wykonać także montaż. Wszystkie domy z naszej oferty nie wymagają dodatkowego ocieplenia.
Przedstawiony projekt występuje w dwóch wersjach : „Kajtek – dach 9,5 stopnia” i „Kajtek – dach 35 stopni”.
Bez względu na to jaki kąt nachylenia dachu wybierzesz, powierzchnia użytkowa to 39,5 metra kwadratowego. Przy kącie nachylenia 35 stopni poddasze nie stanowi powierzchni użytkowej. Po wykonaniu drobnych przeróbek jest możliwość wykorzystania części poddasza z dostępem z zewnątrz (drabina, małe drzwi) jako schowka do przechowywania rzeczy nie wymagających specjalnych warunków termicznych.
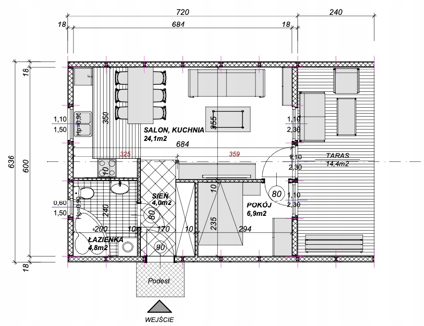
Zestawienie pomieszczeń
Komunikacja - 4 m²
Pokój - 6.9 m²
Łazienka - 4.8 m²
Salon z kuchnią - 24.1 m²
Łącznie - 39.8 m²
Co zawiera zamówienie:
- ściany zewnętrzne w technologi Termo Rocca
- Konstrukcja dachowa dla Kajtek 9,5 stopnia: stropodach Termo Rocca, papa podkładowa, membrana dachowa, pokrycie blachą na rąbek stojący wraz ze wszystkimi akcesoriami i opierzeniami, system rynnowy,
- Konstrukcja dachowa dla Kajtek 35 stopni: termo izolowane płyty sufitowo-stropowe Termo Rocca, konstrukcja więźby dachowej, membrana dachowa, kontrłaty i łaty, pokrycie blachą na rąbek stojący wraz ze wszystkimi akcesoriami i opierzeniami, system rynnowy,
- przepust w stropodachu nad okapem/pochłaniaczem kuchennym,
- okna,
- drzwi zewnętrzne,
- materiały do wykonania instalacji elektrycznej w przygotowanych przepustach,
- rekuperator ścienny,
- wszelkie elementy potrzebne do montażu ( wkręty, pianki, kotwy),
- wszelkie elementy konstrukcyjne ukryte,
- projekt budowlany, pozwalający na uzyskanie pozwolenia na budowę, wymagający tzw. adaptacji, najlepiej wykonanej przez lokalnego architekta,
- instrukcję opisująca krok po kroku kolejne etapy montażu.
Więcej informacji odnośnie wariantów oraz innych projektów znajdą Państwo na naszej stronie internetowej. Jesteśmy producentem domów modułowych, działającym na rynku od kilkunastu lat. Posiadamy w naszej ofercie projekty domów o różnych metrażach oraz zastosowaniach. Podana cena jest ceną netto.
Serdecznie zapraszamy do kontaktu!
www: www_rocca_pl
Email: rocca@rocca.pl
Tel. 505 109 777