Dom, Łódź, Górna, 162 m²
Ogłoszeniodawca: BESTATE Nieruchomości
Kontakt: Barbara Kolasa
Informacje szczegółowe
- Forma własności: Własność
- Typ kuchni: aneks kuchenny - połączony z jadalnią
- Dach: blachodachówka
- Stolarka okienna: PCV
- Tytuł ogłoszenia: Dom w zabudowie bliźniaczej, st. deweloperski
- Nr oferty ogłoszeniodawcy: BESP-DS-13016
- Pow. działki: 500.00 m²
- Powierzchnia użytkowa: 162.40 m²
- Liczba pięter: 1
- Pokoje: 6
- Liczba łazienek: 2
- Liczba sypialni: 5
- Czy łazienka z WC: Razem
- Typ rynku: Wtórny
- Taras: Tak
Budynek
- Rok budowy: 2025
- Materiał budowlany: bliźniak
- Stan budynku: do wykończenia
Media
- kanalizacja (szambo)
Udogodnienia
- balkon
Bliźniak, 6 pokoi, st. deweloperski, Łódź Górna
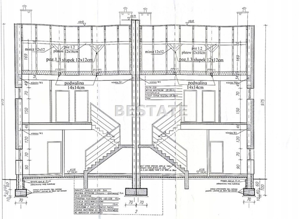
BESTATE Nieruchomości Pabianice oferuje do sprzedaży nowy dom w zabudowie bliźniaczej o powierzchni użytkowej 162,40 m.kw wraz z poddaszem o powierzchni ok. 30 m.kw usytuowany w Łodzi, w dzielnicy Górna. Dom w stanie deweloperskim, wybudowany z pustaka ceramicznego, elewacja docieplona styropianem gr. 20 cm (szary, lambda 35), dach docieplony pianą pur oraz wełną mineralną, wykończony blachodachówką. Działka ogrodzona ogrodzeniem panelowym z furtką oraz bramą wjazdową, podjazd, opaska wokół domu oraz taras wyłożony kostką. Przewidywany termin odbioru domu: 2 kwartał 2025r.
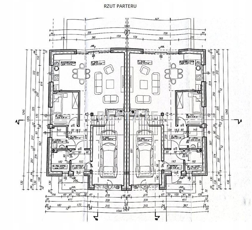
Parter o powierzchni 82,05 m.kw składa się z:
- wiatrołapu 4,00 m.kw
- holu 6,31 m.kw
- salonu 24,77 m.kw
- pokoju 8,38 m.kw
- kuchni z jadalnią 12,03 m.kw
- łazienki 3,11 m.kw
- pom. gosp. 3,62 m.kw
- garażu 19,83 m.kw
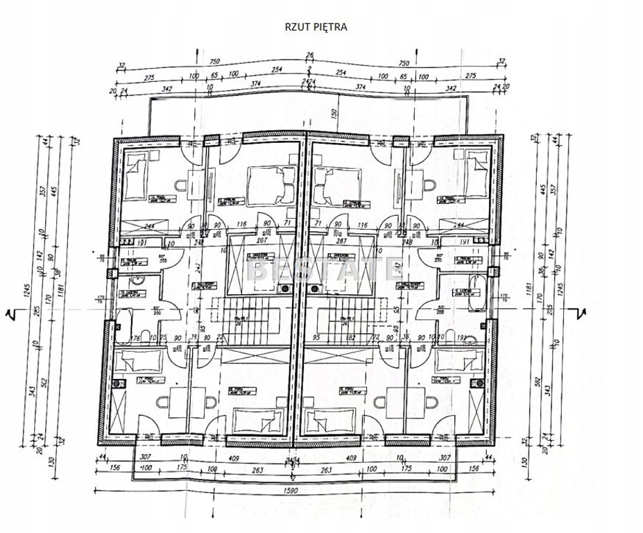
Piętro o powierzchni 80,35 m.kw składa się z:
- hallu i schodów 16,10 m.kw
- garderoby 6,13 m.kw
- pokoju 13,36 m.kw
- pokoju 12,21 m.kw
- pokoju 14,00 m.kw
- pokój 10,52 m.kw
- łazienki 5,44 m.kw
- pralnia 2,59 m.kw
Poddasze o powierzchni ok. 30 m.kw
Stan deweloperski obejmuje:
- tynk + posadzki
- okna 3 szybowe antywłamaniowe,
- brama garażowa segmentowa,
- drzwi wejściowe antywłamaniowe,
- ocieplenie, styropian 20cm + elewacja tynk silikatowo-silikonowy,
- instalacja wodna,
- przyłącza prądu, gazu, szambo 10 000 m3
- w najbliższym czasie planowane jest doprowadzenie kanalizacji miejskiej,
- instalacja deszczowa,
- wyprowadzona instalacja elektryczna na zewnątrz budynku,
- wyprowadzona instalacja wodna na ogród,
- wyprowadzona instalacja po domofon.
Media: energia elektryczna, woda miejska, szambo, ogrzewanie c.o. własne gazowe podłogowe, ciepła woda z pieca gazowego
Dom usytuowany w spokojnej lokalizacji zapewniającej komfort przyjemnego mieszkania.
Cena: 1 100 000 zł
Kupujący nie płaci podatku PCC
Zapewniamy kompleksową obsługę, najlepsze kredyty hipoteczne, bezpieczną transakcję. Jesteśmy z Tobą na każdym etapie zakupu, od prezentacji do przekazania kluczy.
Stan prawny uregulowany, dokumenty dotyczące w/w oferty do wglądu.
Kontakt:
Barbara Kolasa
BESTATE Nieruchomości
tel: 692 400 228
e-mail: bkolasa@bestate.com.pl
Nr licencji osoby odpowiedzialnej zawodowo: 22004
www.bestate.com.pl/pabianice
Pośrednik odpowiedzialny zawodowo za wykonanie umowy pośrednictwa: (licencja nr: 22004)
Lokalizacja:
- Kraj: Polska
- Wojewodztwo: Łódzkie
- Miasto na prawach powiatu: Łódź
- Dzielnica: Górna
(ref. A1536948304)