Dom, Liszkowice, Rojewo (gm.), 111 m²
Ogłoszeniodawca: Prestige Nieruchomości
Kontakt: Anna Szustak
Informacje szczegółowe
- Tytuł ogłoszenia: Liszkowice - dom z widokiem na las, stan surowy
- Nr oferty ogłoszeniodawcy: 640699
- Pow. działki: 702.00 m²
- Powierzchnia użytkowa: 110.56 m²
- Pokoje: 3
- Typ rynku: Wtórny
Budynek
- Materiał budowlany: wolnostojący
Spełnij marzenie i zamieszkaj w otulinie lasu! W miejscowości Liszkowice, z dala od zgiełku można cieszyć się pięknem natury i czystym powietrzem każdego dnia.
Odległość od granic Inowrocławia to 14 km.
Oferta na wyłączność Biura Nieruchomości Prestige.
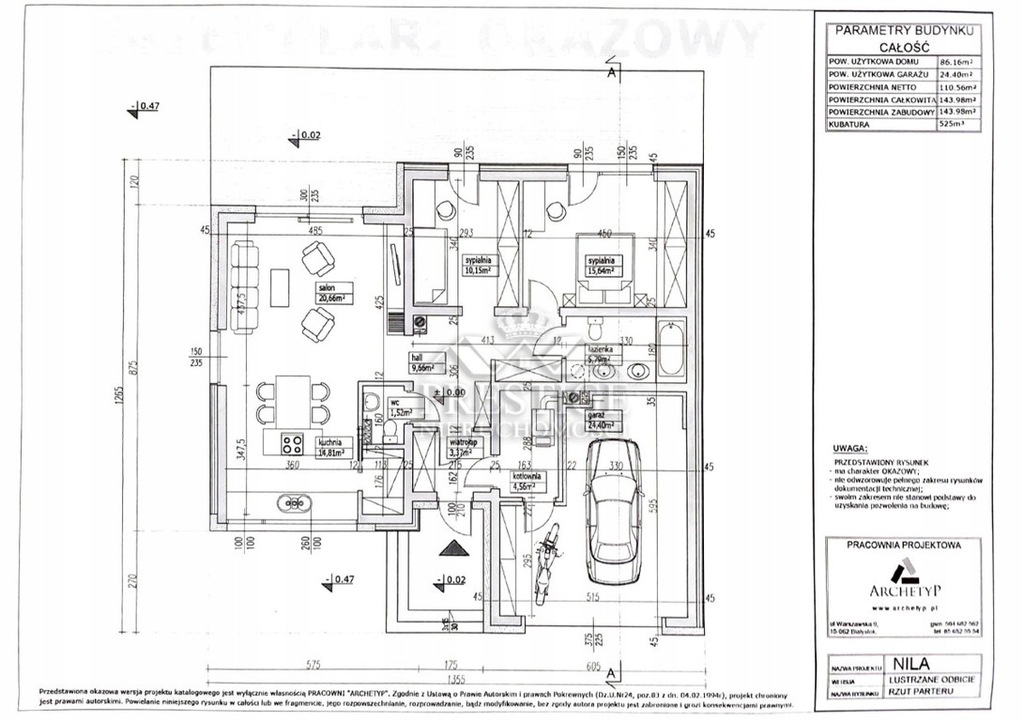
Prestige Nieruchomości prezentuje dom w stanie surowym otwartym o powierzchni całkowitej 110,56 m2 (użytkowej 86,16m2) usytuowany na działce wielkości 702 m2 w miejscowości Liszkowice, gmina Rojewo.
Projekt domu NILA (lustrzane odbicie). Powierzchnia pomieszczeń:
1. wiatrołap 3.37m2
2. hol 9,66 m2
3. łazienka 5,79 m2
4. pokój 15,64 m2
5. pokój 10,15 m2
6. salon 20,66 m2
7. kuchnia z jadalnią 16,33 m2
8. kotłownia 4,56 m2
9. garaż 24,40 m2
Ogółem: 110,56 m2.
Układ pomieszczeń jest bardzo funkcjonalny. W projekcie domu uwzględniono montaż dużych okien, dzięki czemu z większości pomieszczeń rozpościera się malowniczy widok na las i urokliwą okolicę.
Salon, kuchnia i jadalnia stanowią integralną część, więc aby wykorzystać w pełni potencjał przestrzenny zrezygnowano z osobnego WC oraz spiżarni, które zakładał projekt. Dzięki temu pomieszczenia zyskają na komforcie. W projekcie uwzględniono również budowę tarasu z tyłu domu.
Wymiary budynku:
Długość: 1515 cm
Szerokość: 1355 cm
Wysokość pomieszczeń: 380 cm
Dom zbudowany z gazobetonu 24cm (ściany działowe 12cm).
Fundamenty Czamaninek - bloczki fundamentowe keramzytowe.
Wykonano izolację przeciwwilgociową pionową ścian fundamentowych oraz docieplenie ścian fundamentowych styropianem.
Niezawodny, dźwiękoizolacyjny strop TERIVA - PANEL.
Ostatnie prace budowlane zostały wykonane w listopadzie 2022 r.
Zrezygnowano z komina. Dom przystosowany do zamontowania pompy ciepła lub zastosowania innych rozwiązań jak np. kocioł elektryczny, czy piece akumulacyjne.
Oferta skierowana do klientów poszukujących spokoju poza miastem.
W pobliżu w miejscowości Rojewo znajduje się supermarket, sklepy spożywcze, piekarnia, ośrodek zdrowia, przedszkole, szkoła.
Zapraszam na prezentację!
KONTAKT TEL. 733-337-613
Numer licencji Pośrednika 22661.
Bezpłatne doradztwo kredytowe.
Lokalizacja:
- Kraj: Polska
- Wojewodztwo: Kujawsko-pomorskie
- Powiat: Inowrocławski (pow.)
- Gmina wiejska: Rojewo (gm.)
- Miejscowosc: Liszkowice
(ref. A1539631561)