Dom, Kraków, Zwierzyniec, 218 m²
Ogłoszeniodawca: MINT PROPERTY sp. z o.o.
Kontakt: Dorota Kamińska
Informacje szczegółowe
- Forma własności: Własność
- Dostępne od: 2024-09-07
- Nr oferty ogłoszeniodawcy: 9594
- Pow. działki: 1000.00 m²
- Powierzchnia użytkowa: 218.22 m²
- Liczba pięter: 1
- Pokoje: 5
- Umeblowane: Tak
Budynek
- Rok budowy: 2005
- Stan budynku: dobry
Udogodnienia
- balkon
- internet
od września 2024
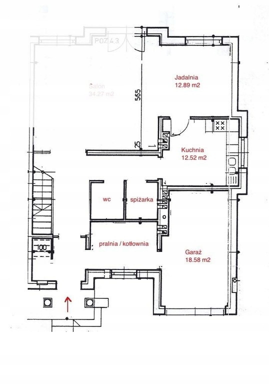
MINT PROPERTY prezentuje nowoczesny, dom położony na 10 arowej działce. Dom o pow. użytkowej 218.22 m2, pow calkowitej po podłodze ok 240 m2 jest w pełni wykończony i umeblowany. Gotowy do wprowadzenia się. Prezentowany dom składa się z:
Na parterze:
salonu wyposażonego w kominek (34.27 m2) i wyjściem do ogrodu,
jadalni (12.89 m2)
kuchni (12.52 m2)
wc (2.9 m2),
pralni kotłowni (8.24 m2) oraz
garażu (18.58 m2),
hall wejściowy schowek przy wejściu (5.38 m2)
na piętrze znajdują się:
- 4 niezależne sypialnie, 2 łazienki (jedna z prysznicem a druga z wanną) oraz garderoba.
Lokalizacja:
Doskonała lokalizacja zapewnia bliskość Parku Decjusza, liczne sklepy (Piekarnia, apteka, Kawiarnia, Bacówka) a jednocześnie szybki dojazd do centrum Miasta oraz na lotnisko. Cisza i spokój. W okolicy wyłącznie domy jednorodzinne. Brama na pilota, system alarmowy, telewizja satelitarna.
Cena:
Miuesięczna cena wynajmu 12 000 PLN + opłaty związane z użytkowaniem domu.
Zapraszamy do oglądania.
Informacja dodatkowa:
Niniejsze ogłoszenie jest wyłącznie informacją handlową i nie stanowi oferty w myśl art. 66, paragraf 1. Kodeksu Cywilnego
Lokalizacja:
- Kraj: Polska
- Wojewodztwo: Małopolskie
- Miasto na prawach powiatu: Kraków
- Dzielnica: Zwierzyniec
- Okolica: Wola Justowska
(ref. A1539047193)