Dom, Kobyłka, Kobyłka, 115 m²
Ogłoszeniodawca: MAXON Nieruchomości
Kontakt: Beata Palaszek
Informacje szczegółowe
- Forma własności: własność
- Tytuł ogłoszenia: Mini Segmenty "Ogrodowa" :Dwupoziomowe 115mkw
- Nr oferty ogłoszeniodawcy: 12399/DS/MAX
- Pow. działki: 40.00 m²
- Powierzchnia użytkowa: 115.42 m²
- Liczba pięter: 1
- Liczba poziomów mieszkania: 2
- Pokoje: 5
- Liczba łazienek: 2
- Taras: Tak
- Powierzchnia tarasu: 10.00 m²
Budynek
- Rok budowy: 2024
Udogodnienia
- obiekt zamknięty
- domofon
Osiedle bezczynszowych Mini Segmentów "Ogrodowa" wyróżniają się nowoczesnym Designem / nowoczesne wolnostojące kamienice dwurodzinne / II kondygnacja bez skosów z oknami pełnowymiarowymi / możliwość adaptacji na 6 pokoi lub dwa oddzielne mieszkania / Kupujesz 115mkw zapisane w KW / powierzchnia I i II kondygnacji jest użytkowa.
Jest to indywidualny projekt wykonany przez wiodąca pracownię projektową. Wyjątkowa architektura nowoczesnych wolnostojących kamienic nie łączonych między sobą nadaje klimat i intymność.
Prezentowany Mini Segment dwupoziomowy położony na I i II piętrze posiada 115mkw powierzchni. Mogą powstać na dwóch kondygnacjach dwa oddzielne apartamenty (3 pokoje, łazienka i aneks kuchenny). II Kondygnacja nie posiada skosów.
Do Apartamentu przynależy OGRÓD o pow. 40mkw położony przed budynkiem / jest możliwość wykorzystania powierzchni na dodatkowe dwa miejsca postojowe.
Mini Segment posiada oddzielne wejście nie łączone z mieszkaniem na parterze (jedyny sąsiad). Kamienice wolnostojące dwurodzinne, nie ma sąsiadów z boku.
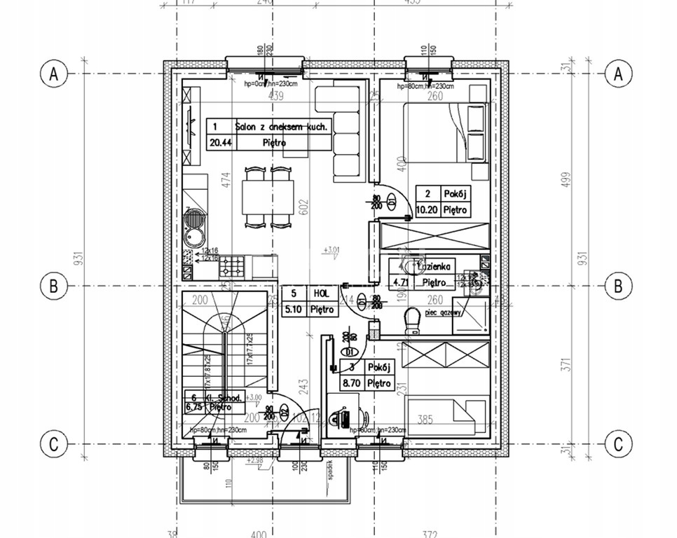
Schemat pomieszczeń:
I kondygnacja
schody i strefa wejściowa (10,37m)Salon z Aneksem Kuchennym (20,44m)Pokój sypialny (10,20m)Pokój (8,70m)Łazienka (4,71m)Hol (5,10m)BalkonII Kondygnacja - bez skosów z oknami pełnowymiarowymi - otwarta przestrzeń do własnej aranżacji (55m).
W cenie:
Ogród ok. 40mkw indywidualny piec gazowy dwufunkcyjnyogrzewanie podłogowe w całym domu I i II Piętro ocieplenie II Piętra pianą PUR w połaci dachowejduży balkonosiedle zamknięteteren wyłożony kostkąbrama wjazdowa na teren osiedladomofonprzyłącza alarmowe, antenowe, TV i internetowepięknie zagospodarowana infrastruktura osiedladwa miejsca postojowe na terenie osiedlana II piętrze ogrzewanie podłogowena II piętrze zamontowane 4 okna pełnowymiarowe (nie dachowe)Media: prąd, wodociąg miejski, siła (indukcja), kanalizacja. gaz, światłowód
Coś o zabudowie...
Kameralne Osiedle Bezczynszowych Mini Segmentów "Ogrodowa". Piękne, zamknięte osiedle o niebanalnej architekturze.
Osiedle: kameralna zabudowa wolnostojących kamienic dwurodzinnych, indywidualny projekt, skupiający się na detalach tworzący spójny koncept osiedla. Projekt wykonany na indywidualne zamówienie. Domy cechuje rzetelność wykonania, doskonała jakość oraz zróżnicowana powierzchnia.
Motto: Wybierz model, który pasuje do twoich potrzeb a otrzymasz spełniającą twoje oczekiwania nieruchomość.
Lokalizacja:
Dzięki swojemu unikalnemu położeniu gwarantuje azyl od miejskiego zgiełku, znajdując się jednocześnie w Centrum Kobyłki (ul. Ogrodowa) w odległości 10 km od Warszawy poprzez trasę S8 dojazd tylko w 17 minut !! Do stacji PKP Kobyłka jest tylko 2km (15 minut pieszo).
W okolicy pełna infrastruktura, szkoły, przedszkola, żłobki, apteki, liczne punkty usługowe oraz sklepy spożywcze.
ATUT:
lokalizacjakupujesz 115kw - jest to zapisane w kw powierzchnia I i II kondygnacji jest użytkowapo nabyciu brak opłat czynszu - nabywca ponosi jedynie koszty związane z eksploatacją lokalukupujesz dom bez dodatkowych opłat (brak prowizji, kosztów ukrytych)oferta bezpośrednio od deweloperapełna obsługa procesu finansowania od pomocy w uzyskaniu korzystnej oferty kredytowej przez formalności do uruchomienia kredytu Przewidywany termin oddania inwestycji - IV kwartał 2025 roku
Zakup z bezpiecznym rachunkiem powierniczym / Kupujący zwolniony z 2% podatku PCC / Bez prowizji
Zapraszam Dzwoń 7 dni w tygodniu 9-21
Podstawowe Rok budowy : 2024 Powierzchnia użytkowa : 115 mkw. Liczba kondygnacji : 2 Stan budynku : Stan deweloperski Materiał : Pustak ceramiczny
Pomieszczenia Liczba pokoi : 5 Salon : 21 mkw. Powierzchnia kuchni : 8 mkw. Liczba łazienek : 2 Lb. oddzielnych toalet : 2 Piwnica : Nie
Media Gaz : Tak Woda : Miejska Prąd : Tak Ogrzewanie : Gazowe, Ciepła woda : Piec gazowy, Kanalizacja : Miejska
Powierzchnia dodatkowa Liczba tarasów : 1
Bezpieczeństwo Osiedle zamknięte : Tak Monitoring : Tak Domofon : Tak Alarm : Nie
Miejsca parkingowe Usytuowanie garażu : Brak
Działka Ogrodzenie : Panele ogrodzeniowe Droga dojazdowa : Asfaltowa
Nasze usługi świadczymy w oparciu o umowę pośrednictwa, która gwarantuje Państwu bezpieczeństwo transakcji oraz pełną opiekę naszego doradcy przez cały okres trwania współpracy. Za wykonaną usługę pobieramy wynagrodzenie zgodnie z warunkami uzgodnionymi w zawartej umowie (za wyjątkiem umów zawartych w programie 0%).
Prezentowane oferty nie stanowią oferty w rozumieniu Kodeksu Cywilnego. Staramy się, aby informacje dotyczące oferowanych obiektów były możliwie dokładne, kompletne i aktualne. Ze względu na okoliczności, iż informacje te pochodzą od osób trzecich i część z nich nie zawsze daje się zweryfikować, MAXON Nieruchomości Sp. z o.o. nie ponosi odpowiedzialności za ich dokładność, kompletność i aktualność
Lokalizacja:
- Kraj: Polska
- Wojewodztwo: Mazowieckie
- Powiat: Wołomiński (pow.)
- Gmina miejska: Kobyłka
- Miejscowosc: Kobyłka
(ref. A1539811910)