Dom, Gdańsk, Kokoszki, 130 m²
Ogłoszeniodawca: Eastate
Kontakt: Magdalena Rybka
Informacje szczegółowe
- Forma własności: Własność
- Tytuł ogłoszenia: Poł bliźniaka + 2 miejsca parkingowe!!!
- Nr oferty ogłoszeniodawcy: 328826
- Ulica: Łagowska
- Pow. działki: 200.00 m²
- Powierzchnia użytkowa: 130.00 m²
- Liczba pięter: 2
- Pokoje: 5
- Liczba łazienek: 2
- Liczba sypialni: 4
- Typ rynku: Pierwotny
- Czy przy mieszkaniu jest ogródek: Tak
Budynek
- Rok budowy: 2024
- Materiał budowlany: bliźniak
Udogodnienia
- miejsca parkingowe (parking naziemny)
Oferujemy na sprzedaż lokal mieszkalny w budynku dwulokalowym, w spokojnej i cichej okolicy z dala od miejskiego zgiełku. W niedalekiej odległości znajduje się pełna infrastruktura handlowo-usługowa. Miejsce idealne dla rodziny z dziećmi - do szkoły zaledwie 1 km. Wokół bardzo dużo terenów zielonych.
Najważniejsze atuty:
Powierzchnia całkowita wynosi 130 m2.
Dodatkowe udogodnienia:
Do nieruchomości przynależą dwa, naziemne miejsca parkingowe.
Stan prawny nieruchomości: Pełna własność z księgą wieczystą.
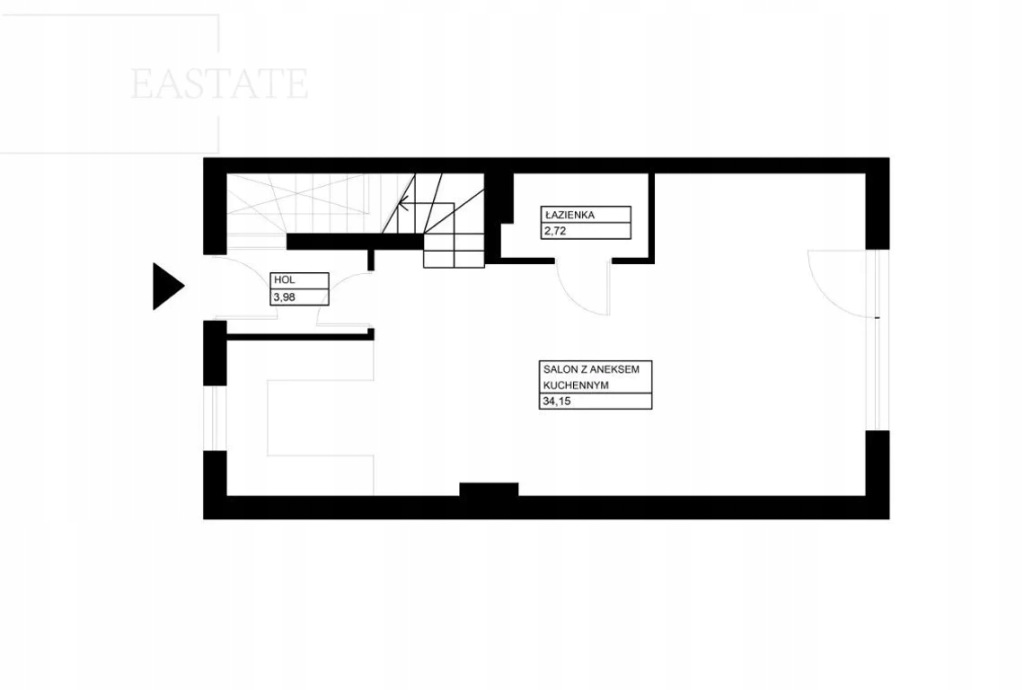
Dom składa się z:
Parter:
- hol o powierzchni 3,98 m2
- salon z aneksem kuchennym o powierzchni 34,15 m2
- łazienka o powierzchni 2,72 m2
Piętro:
- hol o powierzchni 8,19 m2
- sypialnia o powierzchni 8,62 m2
- sypialnia o powierzchni 9,34 m2
- sypialnia o powierzchni 8,78 m2
- łazienka o powierzchni 4,70 m2
Dodatkowym atutem nieruchomości jest brak skosów na piętrze, co zapewnia dużą funkcjonalność pokoi usytuowanych na piętrze. Ocieplone poddasze budynku z dwoma oknami do własnej aranżacji.
Budynek:
Nieruchomość została wybudowana w 2024 roku z wysokiej jakości materiałów. W budynku zamontowany jest piec dwufunkcyjny (ogrzewanie gazowe). Na całej powierzchni rozłożone jest ogrzewanie podłogowe. Wokół budynku kostka brukowa. Przed budynkiem ogród do użytku kupującego.
Jest to idealna alternatywa dla mieszkań w mieście!
Zapraszam na prezentację!
W swojej ofercie posiadamy również dodatkowe usługi takie jak: projektowanie i remonty wnętrz wraz z ich nadzorem, usługę zarządzania najmem oraz doradztwo kredytowe. Zapraszamy do kontaktu, chętnie udzielimy więcej informacji!
Lokalizacja:
- Kraj: Polska
- Wojewodztwo: Pomorskie
- Miasto na prawach powiatu: Gdańsk
- Dzielnica: Kokoszki
- Okolica: Kiełpino Górne
- Ulica: Łagowska
(ref. A1539708489)