Dom, Chełm, Działki, 382 m²
Ogłoszeniodawca: KORN Anna Dziok
Kontakt: Anna Dziok
Informacje szczegółowe
- Forma własności: Własność
- Typ kuchni: jasna z oknem
- Dach: blachodachówka
- Stolarka okienna: PCV
- Tytuł ogłoszenia: Dom -> Akademik -> Firma -> Mieszkaj i Zarabiaj
- Nr oferty ogłoszeniodawcy: HIT-DS-280
- Pow. działki: 1024.00 m²
- Powierzchnia użytkowa: 382.00 m²
- Szerokość działki: 20.00 m²
- Wysokość wnętrza: 260 cm
- Liczba pięter: 2
- Pokoje: 8
- Liczba łazienek: 2
- Liczba sypialni: 4
- Czy łazienka z WC: Razem
- Taras: Tak
Budynek
- Rok budowy: 2006
- Materiał budowlany: wolnostojący
- Stan budynku: bardzo dobry
Media
- gaz (miejski)
- kanalizacja (miejska)
- woda (miejskie)
Udogodnienia
- balkon
- piwnica
- dostęp do drogi (asfaltowa/betonowa)
- ogrodzenie (inne)
DOM Z POTENCJEŁEM
Oferuje na sprzedaż dom z potencjałem położony w Chełmie na osiedlu Działki , w okolicy powstającej akademii medycznej .
Lokalizacja jest wymarzona dla osób zainteresowanych wynajmem pokoi lub większych powierzchni, gdyż w okolicy powstaje akademia medyczna przy PWZS, a przy tym w odległości ok. 1 km od Centrum.
Opis i charakterystyka
Budynek położony jest na działce o powierzchni 1024 m 2 , jego powierzchnia użytkowa to ok. 310 m 2 , plus dwustanowiskowy garaż.
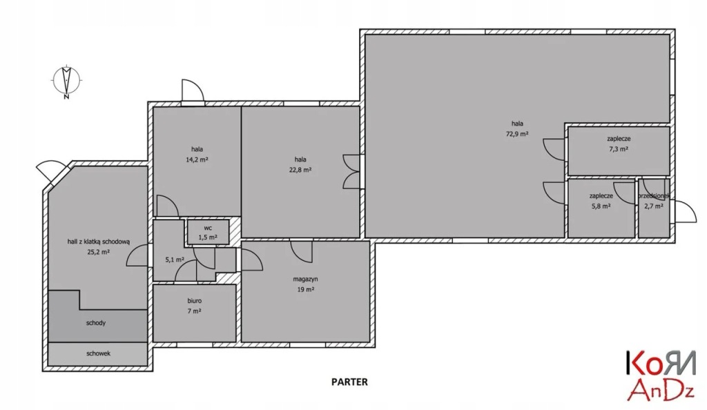
Parter obecnie jest wykorzystywany do produkcji art. spożywczych , więc mamy do dyspozycji ok. 150 metrów przestrzeni mogącej pełnić funkcję produkcyjną, handlową lub usługową.
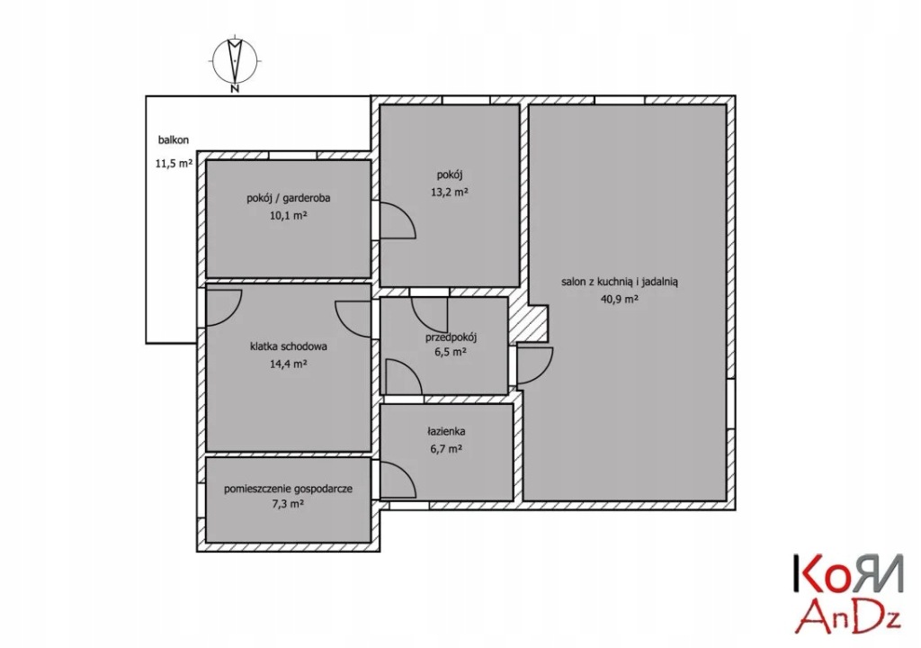
Na piętrze: Przestronny salon z jadalnią i kuchnią, sypialnię, łazienkę z pom. gospodarczym i garderobę.
Na poddaszu: Trzy sypialnie, łazienkę oraz schowek.
Wszystkie kondygnacje z łatwością można przystosować do wynajmu pokoi lub urządzenia akademika.
Dom jest komfortowo wyposażony w media:
- przyłącze wodociągowe, kanalizacyjne i gazowe z sieci miejskiej;
- ogrzewanie i ciepła woda z pieca gazowego;
- ciepło rozprowadzone jest również z kominka
- wybrane pomieszczenia wyposażone są w klimatyzację.
Więcej informacji i zdjęć na stroni www.e-korn.pl
Zadzwoń i umów się na oglądanie, a nie poniesiesz żadnych kosztów związanych z obsługą.
Lokalizacja:
- Kraj: Polska
- Wojewodztwo: Lubelskie
- Miasto na prawach powiatu: Chełm
- Dzielnica: Działki
(ref. A1534151655)