Dom, Bielsko Biała, Stare Bielsko, 172 m²
Ogłoszeniodawca: NL NIERUCHOMOŚCI NATALIA LISOWSKA
Kontakt: Natalia Lisowska
Informacje szczegółowe
- Forma własności: własność
- Tytuł ogłoszenia: Dla Inwestora**Dla dwóch rodzin**Do podziału na dwa lokale
- Nr oferty ogłoszeniodawcy: 39
- Ulica: Twarda
- Pow. działki: 900.00 m²
- Powierzchnia użytkowa: 172.38 m²
- Długość działki: 40.00 m²
- Szerokość działki: 22.00 m²
- Wysokość wnętrza: 265 cm
- Liczba pięter: 1
- Liczba poziomów mieszkania: 2
- Pokoje: 6
- Liczba łazienek: 2
- Liczba sypialni: 6
- Czy łazienka z WC: Osobno
- Typ rynku: Wtórny
- Taras: Tak
- Czy przy mieszkaniu jest ogródek: Tak
- Powierzchnia tarasu: 33.88 m²
- Loggia: Nie
Budynek
- Rok budowy: 1968
- Materiał budowlany: wolnostojący
- Materiał budowlany: cegła
- Stan budynku: do remontu
Media
- gaz (miejski)
- kanalizacja (miejska)
- woda (miejskie)
Udogodnienia
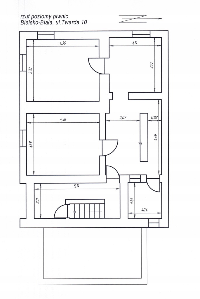
- piwnica
- dostęp do drogi (asfaltowa/betonowa)
- ogrodzenie (siatka)
- miejsca parkingowe (garaż)
Na sprzedaż nieruchomość zabudowana, położona w dzielnicy Stare Bielsko przy ul. Twardej.
Piętrowy dom wolnostojący zlokalizowany na 9-cio arowej działce w wygodnej lokalizacji zaledwie 3km od Centrum.
Parter z lat 30stych został rozbudowany w 1968 r.
Budynek jest podpiwniczony, posiada również garaż jednostanowiskowy w bryle budynku oraz wygodny długi podjazd mieszczący trzy lub cztery mniejsze samochody.
POWIERZCHNIA UŻYTKOWA BUDYNKU 129,25mkw
ROZKŁAD POMIESZCZEŃ:
Parter pow. 64,29mkw (śr. wys. pomieszczeń 2,65m)
1. Pokój dzienny 18,09mkw
2. Pokój/sypialnia 17,02mkw
3. Pokój przy kuchni 10,63mkw
4. Kuchnia 6,60mkw
5. Przedpokój 6,17mkw
6. WC 0,93mkw
7. Łazienka 4,85mkw
Piętro pow. 64,96mkw (śr. wys. pomieszczeń 2,30m)
1.1 Pokój dzienny 18,41mkw
1.2 Pokój/sypialnia 17,06mkw
1.3 Pomieszczenie gospodarcze 8,97mkw
1.4 Kuchnia 6,92mkw
1.5 Przedpokój 8,01mkw
1.6 WC 0,85mkw
1.7 Łazienka 4,74mkw
Dodatkowa powierzchnia:
Wydzielona klatka schodowa na parterze 11,88mkw oraz na piętrze 12,59mkw
Pomieszczenie gospodarcze na półpiętrze 0,60mkw
Taras 33,88mkw
Garaż 18,06mkw
*Dom wybudowany w technologii tradycyjnej z cegły pełnej.
*Ściany fundamentowe z cegły.
*Stropy wylewane z betonu, zbrojone.
*Ściany wewnętrzne, działowe z cegły i bloczków siporeks.
*Dach dwuspadowy nieocieplony, pokryty papą.
*Stolarka okienna stara drewniana.
*Centralne ogrzewanie na gaz (tylko parter), na piętrze do wykonania instalacja.
*Ciepłą wodę użytkową zapewnia bojler (tylko na parterze).
*Budynek przyłączony do sieci energetycznej, wodno-kanalizacyjnej oraz gazowej.
*Na działce pozostała studnia, wodę można wykorzystać do podlewania roślin.
*Od wschodu tj. za domem, ogród warzywny oraz sad z drzewami owocowymi.
*Działka w całości ogrodzona siatką metalową.
Nieruchomość wymaga kapitalnego remontu i najlepiej sprawdzi się dla osób poszukujących możliwości wydzielenia dwóch niezależnych mieszkań.
Klatka schodowa wewnątrz budynku. Posadzki wyłożone lastriko.
Jednostka planu miejscowego 11MN z przeznaczeniem: zabudowa mieszkaniowa jednorodzinna.
W najbliższym sąsiedztwie znajduje się zabudowa jednorodzinna.
Z nieruchomości rozciąga się widok na góry Beskidu Śląskiego. W pobliżu tereny spacerowe ok 1km Wzgórze Trzy Lipki.
Do przystanku autobusowego 400m LINIA nr 18 → kierunek: Stare Bielsko Kościół / Osiedle Złote Łany (przez Piastowską i 3 Maja).
Najbliższy sklep 650m – Lidl.
Nieruchomość korzystnie położona, dobrze skomunikowana z centrum miasta. Posiada bezpośredni dostęp do drogi publicznej.
Zatem..
Jeśli szukasz domu do aranżacji wg własnych potrzeb, w którym na parterze mogliby zamieszkać Twoi starsi Rodzice a Ty wraz z Rodziną na piętrze to serdecznie zapraszam:)
Nieruchomość idealna również pod inwestycję. Do podziału na dwa lokale mieszkalne pod wynajem lub sprzedaż.
Serdecznie zapraszam!
Natalia Lisowska
Lokalizacja:
- Kraj: Polska
- Wojewodztwo: Śląskie
- Miasto na prawach powiatu: Bielsko-Biała
- Dzielnica: Stare Bielsko
- Ulica: Twarda
(ref. A1540740672)