Biurowiec, Warszawa, Mokotów, 254 m²
Ogłoszeniodawca: CONCIERGE ESTATE
Kontakt: Piotr Kot
Informacje szczegółowe
- Typ kuchni: aneks
- Dostępne od: 2024-11-14
- Typ nieruchomości: biuro/biurowiec
- Tytuł ogłoszenia: Do wynajęcia lokal biurowo-usługowy o pow.254m2.Usytuowany blisko GaleriiMokotów
- Nr oferty ogłoszeniodawcy: 53-2
- Ulica: Rabindranatha Tagore
- Pow. działki: 0.00 m²
- Powierzchnia użytkowa: 254.00 m²
- Wysokość wnętrza: 280 cm
- Umeblowane: Tak
- Typ rynku: Wtórny
- Liczba pomieszczeń: 11
- Loggia: Nie
Budynek
- Rok budowy: 2003
- Stan budynku: dobry
Media
- kanalizacja (miejska)
- woda (miejskie)
Udogodnienia
- winda (1)
- domofon
- internet
- pomieszczenie socjalne
- klimatyzacja
- dostęp do drogi (asfaltowa/betonowa)
- ogrodzenie (inne)
- miejsca parkingowe (garaż)
Wyposażenie
- lodówka
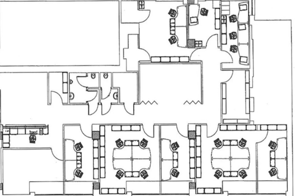
Do wynajecia lokal biurowy o pow.254m2. Usytuowany kilka minut do Galerii Mokotów i trasy S79, kilkanaście minut do lotniska Chopina ido Dworca Centralnego. 3 minuty spacerem do przystanku autobusowego i 10 minut spacerem do Metra Racławicka. ROZKŁAD:
- hall wejściowy + recepcja 22,70 m2
- pomieszczenie biurowe 17,06 m2
- pomieszczenie biurowe 11,97 m2
- pomieszczenie biurowe 24,06 m2
- pomieszczenie biurowe 11,97 m2
- pomieszczenie biurowe 24,06 m2
- pomieszczenie biurowe 10,95 m2
- pomieszczenie biurowe 12,29 m2
- pomieszczenie biurowe 8,82 m2
- pomieszczenie biurowe 20,39 m2
- sala konferencyjna 16,12 m2
- magazyn 2,39 m2
- archiwum 2,83 m2
- kuchnia 4,15 m2
- wc damskie 2,82 m2
- wc męskie 5,67 m2
- garderoba 3,76 m2
- komunikacja 28,56 m2
Rozmieszczenie pomieszczeń zgodne z załączonym planem lokalu. W każdym pokoju zainstalowana jest klimatyzacja. Lokal wyposażony jest w instalacje: wodociągową, kanalizacyjną, elektryczną, centralne ogrzewanie, domofonową, klimatyzację, telefoniczną oraz telewizyjną.
STANDARD: Na podłodze w lokalu znajdują się: terakota, wykładzina dywanowa oraz deska warstwowa. Lokal umeblowany: biurka, stoły konferencyjne, szafki z półkami, przystosowany jest do działalności biurowej. Lokal idealnie nadaje się pod biuro (kancelaria prawna, notarialna, księgowa), agencje nieruchomości, agencję reklamową, firmę IT lub inną działalność typu back office. Blisko do węzłów komunikacyjnych, lotniska, obiektów handlowych i Dworca Centralnego, a jednocześnie z dala od zgiełku i hałasu. Bardzo dobre doświetlenie dzięki dużym oknom z trzech stron lokalu. Strefa bezpłatnego parkowania. Kilka minut spacerem do aptek, bazarku, usług, sklepów i lokali gastronomicznych. Do lokalu przynależą cztery miejsce postojowe w hali garażowej. KOMUNIKACJA: W odległości ok. 280 m: Autobus: 138, 168, 172, 141, N01, N34 W odległości ok. 450 m: Tramwaj: 1, 7, 9, 15, 17, 25, 33, 35, 76 W odległości ok. 900 m stacja metra Racławicka. Winda osobowa z poziomu garażu, podjazd dla niepełnosprawnych. Lokal posiada KW. Podsumowanie oferty: Cena netto: 16000 zł plus 4000zł czynsz administracyjny
Office space for sale, 254m2. Located a few minutes to Galeria Mokotów and route S79, a dozen or so minutes to Chopin Airport and the Central Station. 3 minutes walk to the bus stop and 10 minutes walk to the Racławicka Metro. LAYOUT:
- entrance hall + reception 22.70 m2
- office room 17.06 m2
- office room 11.97 m2
- office room 24.06 m2
- office room 11.97 m2
- office room 24.06 m2
- office room 10.95 m2
- office room 12.29 m2
- office room 8.82 m2
- office room 20.39 m2
- conference room 16.12 m2
- warehouse 2.39 m2
- archive 2.83 m2
- kitchen 4.15 m2
- women's toilet 2.82 m2
- men's toilet 5.67 m2
- wardrobe 3.76 m2
- communication 28.56 m2
The layout of the rooms is in accordance with the attached plan of the premises. Each room has air conditioning. The premises are equipped with the following installations: water supply, sewage, electricity, central heating, intercom, air conditioning, telephone and television.
STANDARD: On the floor in the premises there are: terracotta, carpet and layered board. The premises are furnished: desks, conference tables, cabinets with shelves, adapted for office activities. The premises are ideal for an office (law office, notary office, accounting office), real estate agencies, advertising agency, IT company or other back office type activities. Close to transport hubs, airport, commercial facilities and the Central Railway Station, and at the same time away from the hustle and bustle and noise. Very good lighting thanks to large windows on three sides of the premises. Free parking zone. A few minutes walk to pharmacies, bazaar, services, shops and restaurants. The premises include four parking spaces in the garage. COMMUNICATION: At a distance of approx. 280 m: Bus: 138, 168, 172, 141, N01, N34 At a distance of approx. 450 m: Tram: 1, 7, 9, 15, 17, 25, 33, 35, 76 At a distance of approx. 900 m is the Racławicka metro station. Passenger lift from the garage level, ramp for the disabled. The premises have a land and mortgage register. Offer summary: Net price: 16000 pln plus 4000zł/monthly administration.
Lokalizacja:
- Kraj: Polska
- Wojewodztwo: Mazowieckie
- Miasto na prawach powiatu: Warszawa
- Dzielnica: Mokotów
- Ulica: Rabindranatha Tagore
(ref. A1540055952)